Всё о строительстве, отделке и ремонте домов и квартир. Форум, блоги, чат. Дом СоветовЪ.

Всё о строительстве, отделке и ремонте домов и квартир. Форум, блоги, чат. Дом СоветовЪ. (http://www.domsovetov.by/forum.php)
-   Моя стройка! (http://www.domsovetov.by/forumdisplay.php?f=147)
-   -   Семейная усадьба. Хроники. (http://www.domsovetov.by/showthread.php?t=7490)

Стэлс 07.02.2016 22:56

@AAR, а почему печку в стенку 40 см не поставишь? В чем сложность? есть же с длинными "мордами" и стеклом в дверце (правда не такого размера как на фото камина:) ). Или укрепить(по капитальным лучше с Иваном проконсультироваться, как укрепить предварительно), вырезать проем нужный и вставить новую перемычку

purler 08.02.2016 04:23

Семь раз отмерь, один отрежь.
При детальных проработках расположения мебели и прочего оно вечно не стыкуется с реальными размерами построенного. Перенести двери не сложно, но есть риск что родится еще лучше дизайн и опять двигать стенки. Было пару мелочей, что хотел переделать, но потом пришла гениальная идея и получилось даже лучше и без лишних переделок.
Лучше не спешить, пусть решение чуть вылежится.

ister 08.02.2016 09:03

@AAR,
тройник в сауну заглушить, а в трубе вырезать отверстие и вклеить новый патрубок ...
час работы максимум...

Prosto 08.02.2016 09:08

Цитата:

Сообщение от AAR (Сообщение 250991)
да, на этих перегородках просто пруты арматуры...

я делал перемычки бетонные

мусора от такой поленницы возле камина будет море

ДмитрийМ 08.02.2016 12:58

Цитата:

Сообщение от Стэлс (Сообщение 251037)
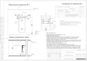
По проемам-я в капитальной стене перемычку поднимал. Прохлоп недопроектирования , слишком низкий проем получался с учетом чистового пола . Сделал штробу с двух сторон стены болгаркой, вставил уголок 50*50 и длиной больше проема на 60см(в каждую сторону по 30). И раздолбал перемычку старую. Аналогично можно и с перегородками в полкирпича

НЕЛЬЗЯ так в КАПИТАЛЬНОЙ (НЕСУЩЕЙ) стене проём делать. Уголок 50х50 не може т принять всю нагрузку, которая есть в капитальной стене. перегородки из Гипсокартона, из газосиликата толщиной в 20см, в полкирпича - пожалуйста.http://www.domsovetov.by/imagehostin...866c809dbc.jpg

Стэлс 08.02.2016 14:47

@ДмитрийМ, у меня она капитальная с оговорками. Она идет по середине всего дома и на нее балки опираются, а не плиты. Над проемом еще 3 ряда блоков и армопояс. Оно и без перемычки вообще держится

Стэлс 09.02.2016 15:21

@AAR, а что за люк возле главных ворот на улице(сейчас пара колес на нем)? Практически по ходу движения при заезде (

AAR 11.02.2016 23:46

Цитата:

Сообщение от Стэлс (Сообщение 251040)
@AAR, а почему печку в стенку 40 см не поставишь? В чем сложность? есть же с длинными "мордами" и стеклом в дверце (правда не такого размера как на фото камина:) ). Или укрепить(по капитальным лучше с Иваном проконсультироваться, как укрепить предварительно), вырезать проем нужный и вставить новую перемычку

причин 2:

1) смотрел я эти печки - они оч маленькие снаружи. т.е. как камин вообще не покатят. + стекло покрывается копотью и там внутри вообще ничего не видно...

2) ленивый я... и руки из Ж. хочу нажать кнопку и пойти париться )

AAR 11.02.2016 23:47

Цитата:

Сообщение от ister (Сообщение 251105)
@AAR,
тройник в сауну заглушить, а в трубе вырезать отверстие и вклеить новый патрубок ...
час работы максимум...

@ister, а кто может это сделать? и где взять то, что вклеивать? ) у вас продается? )

ister 11.02.2016 23:51

конечно продаётся , на 160? завтра посмотрю наличие на складе
сделать тоже есть кому


Текущее время: 16:02. Часовой пояс GMT +3.

Powered by vBulletin® Version 3.8.8
Copyright ©2000 - 2026, vBulletin Solutions, Inc. Перевод: zCarot
Webmaster: OldEr
Реклама у нас
При публикации материалов с нашего сайта гиперссылка на Дом СоветовЪ обязательна