Всё о строительстве, отделке и ремонте домов и квартир. Форум, блоги, чат. Дом СоветовЪ.

Всё о строительстве, отделке и ремонте домов и квартир. Форум, блоги, чат. Дом СоветовЪ. (http://www.domsovetov.by/forum.php)
-   Моя стройка! (http://www.domsovetov.by/forumdisplay.php?f=147)
-   -   Строим дом в Семково (http://www.domsovetov.by/showthread.php?t=9444)

a.yenzh 26.08.2018 18:37

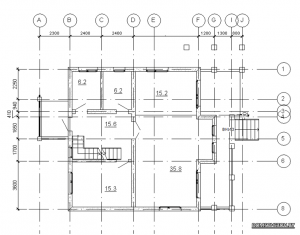
@Barman, добрый день. если я правильно понял то речь идет о межэтажной лестнице? там вход в котельную. т.е заходишь в дом справа на лестницу, слева в котельную, вперед прихожая. расстояние чуть больше метра от входа в котельную до лестницы. насчет удобно - пока не заметил проблем.
http://www.domsovetov.by/imagehostin...2c94ae9728.png

Barman 27.08.2018 11:57

@a.yenzh, спасибо. У меня вход в прихожую (второе помещение после тамбура) ровно как у вас выход из котельной. И расстояние получается, около 900 см, до первой ступени. Вот я и не могу понять, не слишком ли это мало, или может быть стоить сделать менее удобную лестницу, но расстояние будет тогда 1150 где то.

a.yenzh 27.08.2018 16:26

@Barman, можете подъехать глянуть как это вживую :)

a.yenzh 30.08.2018 20:35

Перед декоративкой поставали отливы, подшили крышу и поставили водосточку. Одна сторона готова.

http://www.domsovetov.by/imagehostin...82bdb1c1fd.pnghttp://www.domsovetov.by/imagehostin...82bf26ed91.png
http://www.domsovetov.by/imagehostin...82aad3845b.jpghttp://www.domsovetov.by/imagehostin...82ace945a6.jpg

Юра Добриденев 30.08.2018 21:12

отливы нужно ставить после декоративки. Она же у вас уже есть

a.yenzh 30.08.2018 21:18

@Юра Добриденев, почему после? Поставили до, чтобы декоративка чуть заходила (или точнее впритык) на ограничители отливов по краям чтобы по краям ничего не затекало

Lama 30.08.2018 23:31

@a.yenzh, декоративка церезит? какой размер зерна?

Юра Добриденев 30.08.2018 23:40

Цитата:

Сообщение от a.yenzh (Сообщение 311771)
@Юра Добриденев, почему после? Поставили до, чтобы декоративка чуть заходила (или точнее впритык) на ограничители отливов по краям чтобы по краям ничего не затекало

1) Чтобы не засрать
2) Чтобы, если что, можно было заменить без повреждений декоративки.
3) Герметизируется герметиком, а не декоративкой.

a.yenzh 30.08.2018 23:42

@Lama, да, светлая - CT174 1.5 мм, коричневая и серая - CT77

a.yenzh 30.08.2018 23:49

@Юра Добриденев, сделали аккуратно, вероятность съема отлива такая же как вероятность съема окна. делают они и герметиком, но так по их опыту лучше. видел такой вариант исполнения у них на фасадах которым >15 лет - проблем не заметил.


Текущее время: 14:20. Часовой пояс GMT +3.

Powered by vBulletin® Version 3.8.8
Copyright ©2000 - 2026, vBulletin Solutions, Inc. Перевод: zCarot
Webmaster: OldEr
Реклама у нас
При публикации материалов с нашего сайта гиперссылка на Дом СоветовЪ обязательна