Всё о строительстве, отделке и ремонте домов и квартир. Форум, блоги, чат. Дом СоветовЪ.

Всё о строительстве, отделке и ремонте домов и квартир. Форум, блоги, чат. Дом СоветовЪ. (http://www.domsovetov.by/forum.php)
-   Фундамент (http://www.domsovetov.by/forumdisplay.php?f=20)
-   -   Свайно-ростверковый фундамент (фундамент по ТИСЭ) (http://www.domsovetov.by/showthread.php?t=2606)

Славка 05.07.2018 19:16

А на кой их гнать от фундамента и нах они кирпичные?
И даже кирпичные нормально через армопояс проходят и не нужно городить углы в комнатах

Linusik 05.07.2018 21:24

отлично) можно подробнее, плиз?) в армопоясе просто дырки делать в месте прохождения каналов? я как-то читала-читала и так и не поняла стоит ли делать не в кладке. ну по-крайней мере кладка из кирпича 100% нужна под дымоходы, так ведь? ну с гильзой, разумеется.
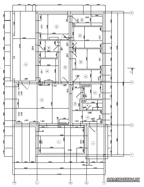
А вообще получается, что по планировке загнать вентканалы в стену выйдет только по центру под номером 1? там стена в полтора кирпича. и то не получится вывести на краю стены, там опираться прогон будет, который над кухней идет. и тогда два вентканала, предназначенных для кухни, будут от нее отрезаны.
а в топочной-то перегородка (под номером 3), по которой тоже армопояс пойдет....и толщиной она 250мм (хотя я хотела бы 200мм, но может это маловато?? ведь эти поперечные перегородки должны, так сказать, задавать жесткость длинной и очень высокой, под конек, центральной стене)
вентканал под номером 5 можно полность вывести по центральной стене, тогда он закончится на крыше в коньке, а как это будет выглядеть???

---------- Сообщение добавлено в 21:24 ---------- Предыдущее было в 21:05 ----------

http://www.domsovetov.by/imagehostin...e624c35e93.png

Славка 05.07.2018 22:24

Вся крыша будет утыкана вентканалами.
Под какие дымоходы кирпич и гильза?

Linusik 05.07.2018 23:11

ну так что поделаешь......одноэтажный дом......есть дневная и ночная зона со своими мокрыми комнатами:(
под номером 1 два вентканала для кухни, один для гостиной и один дымоход для камина.
под номером 3 один вентканал для ванной, два дымохода (один для газового котла, другой для твердотопливного).
я думала может получится объеденить вентканалы под номером 2 и 3? но тогда как вентилировать гардеробную (где сейчас находится номер 2)??? тянуть горизонтальный участок? так вроде нельзя делать....

Lama 06.07.2018 01:31

картинка мелковата конечно. Там где канал попадает в толщу стены пояс не прерывается, а утолщается по периметру канала и армируется все это как непрерывная лента. Чтоб лучше представить, вент канал получит как бы прослойку из бетона на высоту пояса.

---------- Сообщение добавлено в 01:31 ---------- Предыдущее было в 01:28 ----------

2 и 3 легко обьединяется в одну шахту, не стоит их разносить. И располагается там где сейчас у вас номер 2. Вообще вентилировать все комнаты нет смысла, да и на прогрев будет уходить больше энергии.

Юра Добриденев 06.07.2018 09:59

стена 300 мм, каналы 150х120мм. Правый канал открывается на эту сторону, видна закладная из эппс. На другую сторону уже опираются плиты перекрытия.
http://www.domsovetov.by/imagehostin...f135189dd7.jpg

Linusik 06.07.2018 11:34

http://www.domsovetov.by/imagehostin...f26fd76a3b.png

---------- Сообщение добавлено в 11:32 ---------- Предыдущее было в 11:23 ----------

http://www.domsovetov.by/imagehostin...f28f30a088.pnghttp://www.domsovetov.by/imagehostin...f29023bb16.png

---------- Сообщение добавлено в 11:34 ---------- Предыдущее было в 11:32 ----------

получается что в гардеробной 4, котельной 5 и су 9 нужны вент.каналы и два дымохода. с радостью бы объединила, но как тогда их развести???

Scorpy 09.07.2018 17:33

Цитата:

Сообщение от Linusik (Сообщение 309879)
как тогда их развести?

із гардероба горізонтально сделать

тоже самое для 16 і 14 - общий вентканал в стене 13-11. если непоздно

Linusik 10.07.2018 13:15

как раз не поздно внести изменения))......вот только я не поняла(((
1 что значит горизонтально сделать? (Постирочная - я так назвала......но там будет и туалет и душевая кабина)
2 и что значит общий вентканал 13-11??? ведь это детская и спальня...
может так удобнее видно будет....http://www.domsovetov.by/imagehostin...487356fed2.jpg

Scorpy 10.07.2018 16:38

Цитата:

Сообщение от Linusik (Сообщение 310111)
1 что значит горизонтально сделать?

ну от стояка горизонтальные отводы
http://media.mastergrad.com/thumbnai...bd0e05f88.jpeg
Цитата:

2 и что значит общий вентканал 13-11??? ведь это детская и спальня...
может так удобнее видно будет....
в стене между комнатами 11-13, а в остальные помещения как на картинке выше.

итого через крышу уходит 2 шахты вместо 4х :bv:


Текущее время: 23:58. Часовой пояс GMT +3.

Powered by vBulletin® Version 3.8.8
Copyright ©2000 - 2025, vBulletin Solutions, Inc. Перевод: zCarot
Webmaster: OldEr
Реклама у нас
При публикации материалов с нашего сайта гиперссылка на Дом СоветовЪ обязательна