Всё о строительстве, отделке и ремонте домов и квартир. Форум, блоги, чат. Дом СоветовЪ.

Всё о строительстве, отделке и ремонте домов и квартир. Форум, блоги, чат. Дом СоветовЪ. (http://www.domsovetov.by/forum.php)
-   Крыша и мансарда (http://www.domsovetov.by/forumdisplay.php?f=38)
-   -   Стропильная система (http://www.domsovetov.by/showthread.php?t=227)

voffka 09.01.2014 14:48

Цитата:

Сообщение от Nick_Shl (Сообщение 170695)
Нужно или можно? Это ведь две большие разницы :)

Нижний ряд нужно, остальные можно.

sansan 09.01.2014 21:01

Цитата:

Сообщение от Nick_Shl (Сообщение 170695)
Т.е. грубо кубов 6. А какой класс? Первый, второй?

5,3 куб., но это только стропила, ещё брусок на контробрешётку и обрешётку, ветровую доску, подшивку, брус на перекрытия. По качеству как получится, хорошо бы конечно 1-2 го сорта. Я бы предпочёл сосну, но можно и ель.

Цитата:

Сращивать самому? Как именно?
Конечно самому, по месту, любыми способами, можно просто встык и два или один обрезка сбоку, гвоздями насквозь и загнуть. Можно конечно и пластинами перфорированными с шурупами, но непринципиально. Главное прочность обеспечить.


Цитата:

Вот эскизик бы "рамной конструкции", где подпорки, как сращивать и как крепить...
А картинку тогда я сам попробую нарисовать :)
Сделаю, возможно в виде эскиза. Хотя в процессе монтажа всё будет очевидно, что куда и т.д. Ну и с учётом опоры на перекрытия,... брус где-то сечением 150х250 надо для перекрытий.

Цитата:

Вот все думаю: может все-таки чуть увеличить угол ската? Мне кажется, что если увеличить, то будет смотреться лучше...
Наверное да)

Цитата:

Проще чем? Их же надо еще напилить, установить, прикрепить... при этом этот брус получается как рычаг(судя по картинке из самого первого сообщения этой темы) На стропилинах тоже запилы надо делать, но не думаю, что это настолько сложно.
Брусом всё равно перекрывать, брус проще кмк строго горизонтально выпустить, и практически можно без лесов обойтись, ну только подшивать сложно без них.
Стропила запилить и выпустить строго в плоскости сложнее и если не зафиксировать ветровой доской, их ещё и поведёт, вверх, вниз и крутить будет.


Цитата:

Да и подшивка не парралельная земле по мне красивее выглядит... просто вагонку прямо к стропилам снизу прибить и подшивка готова(как мне кажется).
Спорно, как раз в случае шатровой крыши, лучше будет выглядеть параллельная и технологичней насчёт подшивки и крепления водосточки.

Цитата:

Водосточку за торцы стропил крепить можно...
Крюк сверху, прямо в торец неполучится, или ветровку набивать и к ней крепить, хотя ветровка по-любому, если только не открытыми оставлять, тогда можно вагонку сверху набить... но качество древесины и обработка должны быть соответствующие, боюсь как на картинках в импортных книжках, в наших реалиях не получится... хотя попробовать можно)

Nick_Shl 10.01.2014 15:19

Цитата:

Сообщение от sansan (Сообщение 170726)
Конечно самому

Ну мало ли... есть же разные способы. Например запил под "зубы":
http://www.strou-dom.ru/wp-content/u...eniy_brus3.png
и склейка... вот только самому такое не сделать.

Цитата:

Сообщение от sansan (Сообщение 170726)
Ну и с учётом опоры на перекрытия,... брус где-то сечением 150х250 надо для перекрытий

Нифига себе! Это же сколько еще дерева пойдет... а я надеялся, что перекрытие можно перекрыть той же доской 70х180 с тем же шагом 800 мм...

Цитата:

Сообщение от sansan (Сообщение 170726)
Брусом всё равно перекрывать

Так это только с двух сторон. А еще на двух его не будет - надо будет специально извращаться(это видно на картинке из первого сообщения этой темы)

Цитата:

Сообщение от sansan (Сообщение 170726)
если не зафиксировать ветровой доской, их ещё и поведёт, вверх, вниз и крутить будет.

Это доска прикрученная к торцу стропилин?

sansan 10.01.2014 21:08

Цитата:

Сообщение от Nick_Shl (Сообщение 170816)
Нифига себе! Это же сколько еще дерева пойдет... а я надеялся, что перекрытие можно перекрыть той же доской 70х180 с тем же шагом 800 мм...

На них же частично ляжет нагрузка от довольно тяжёлой кровли. Так что сечение не уменьшать! )))


Цитата:

Сообщение от Nick_Shl (Сообщение 170816)
Так это только с двух сторон. А еще на двух его не будет - надо будет специально извращаться(это видно на картинке из первого сообщения этой темы)

С двух других строн можно стропильником сделать выпуски, закрепив вторые онцы к брусу перекрытий, это сравнительно несложно, наиболее сложно выпуски под ребровые длинные стропилины, по углам.

Цитата:

Сообщение от Nick_Shl (Сообщение 170816)
Это доска прикрученная к торцу стропилин?

Да.

---------- Сообщение добавлено в 20:08 ---------- Предыдущее было в 19:09 ----------

кстати насчёт извращаться, ещё как придётся... Около 80 м. пог. это только подрезки черепиц, с каждой залесть, примерить - отметить, слезть, подрезать, закрепить и так много раз.)))

Nick_Shl 10.01.2014 23:32

Цитата:

Сообщение от sansan (Сообщение 170863)
На них же частично ляжет нагрузка от довольно тяжёлой кровли. Так что сечение не уменьшать! )))

Не, дорого и тяжело :D
Итак, наша кровля весит сколько? Пусть 50 кг/м2. Плюс снеговая нагрузка - еще 200 кг/м2.
Итого 250 кг/м2. Нашел тут программу по расчету однопролетных деревянных балок.
Задаю параметры: нагрузка по площади 250 кг/м2, шаг 800 мм, пролет 5300(я так понимаю опорные концы не учитываются?), размеры балки 70x250. В результате прогиб показывает 22 мм или 1/241. Для чердачных перекрытий кажись 1/200 принимается.
Единственный нюанс, то что это прогиб с максимальной снеговой нагрузкой... без нее при нагрузке на перекрытие 50 кг/м2 прогиб всего 2 мм. Так что перекрытие будет "гулять" зимой...
Но это расчет, если вся нагрузка от крыши ляжет на перекрытие. А ведь это не так. Какая-то часть ляжет на подпорный брус в центре который довольно близко к капитальной стене, какая-то часть ляжет на мазурлат и стены.

При 150x250 и нагрузке 250 кг/м2 - прогиб 10 мм или 1/530 - запас просто офигенный :)

Цитата:

Сообщение от sansan (Сообщение 170863)
кстати насчёт извращаться, ещё как придётся... Около 80 м. пог. это только подрезки черепиц, с каждой залесть, примерить - отметить, слезть, подрезать, закрепить и так много раз.)))

Да ну нафиг! Мы же "умные"! Все положим на скат, потом залезем и болгаркой с алмазным диском пройдемся сразу по обоим граням ската :)

sansan 11.01.2014 00:36

Цитата:

Сообщение от Nick_Shl (Сообщение 170890)
Да ну нафиг! Мы же "умные"! Все положим на скат, потом залезем и болгаркой с алмазным диском пройдемся сразу по обоим граням ската

ну на 22-23 гр. наверное можно попробовать так, возможно всё получится.)
p/s брус 150х250х6000 поднимали в двоём, правда достаточно сухой, из ёлки. На фото расстояние между опорами 4,4 м.

http://www.domsovetov.by/imagehostin...059b969d10.jpg

Nick_Shl 11.01.2014 13:10

Цитата:

Сообщение от sansan (Сообщение 170899)
ну на 22-23 гр.

26 :)

Поправочка по расчету: максимальный пролет-то 4900, а не 5300. Если взять такой пролет и загнать его в ту программу, то балка 70x250 при нагрузке 250 кг/м2 даст прогиб 16 мм или 1/306 - вписывается в норму по межэтажным перекрытиям.
На одно перекрытие надо минимум 20 шестиметровых(для некоторых можно 4,5 взять, если такие пилят, конечно). То есть 4.5 куба если брать 150x250. И 2.1 куба если 70x250. По чем нынче куб бруса?

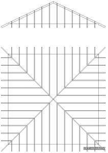
Вот набросал картинки:
http://www.domsovetov.by/imagehostin...109491b1c7.pnghttp://www.domsovetov.by/imagehostin...1095836f33.pnghttp://www.domsovetov.by/imagehostin...109673c110.png

Как стропилины крепятся к мазурлату - понятно. А как их крепить к диагональным стропилинам? С помощью металлических пластин?

Кстати, ЦПЧ от Забудовы допускает укладку без дополнительного слоя гидроизоляции. Может сэкономить? А если крыша начнет протекать - положить слой гидроизоляции по чердачному перекрытию? :D

Есть еще и такой вариант:
http://www.domsovetov.by/imagehostin...10be61154f.png

sansan 11.01.2014 13:41

Цитата:

Сообщение от Nick_Shl (Сообщение 170928)
По чем нынче куб бруса?

Раньше стоил также как и стропильник или доска. Везде по-разному. Я привозил из Борисова, по 150$ за куб., но это было пару лет назад... свежепиленная, естественной влажности.

Цитата:

Сообщение от Nick_Shl (Сообщение 170928)
ЦПЧ от Забудовы допускает укладку без дополнительного слоя гидроизоляции. Может сэкономить?

Лучше не надо экономить, от многих слышал, что под неё задувает снег. Тем более на таких малых углах. Странно, что они допускают. Кмк, очередной маркетинговый ход, чтобы сделать материал более привлекательным, а после хоть потоп, в данном случае возможно и в буквальном смысле.)) В случае претензий всегда можно сослаться на неправильный монтаж, плохих мастеров и т.д., т.е. послать.
У нас в посёлке у одного вообще делали сплошную обрешётку, рубероид, а потом черепицу. Возможно с покрытием передумали, но возможно так и было задумано, мне знакомый кровельщик говорил о таком варианте, именно из-за возможных проблем с задуванием снега.

voffka 11.01.2014 15:37

Цитата:

Сообщение от sansan (Сообщение 170930)
У нас в посёлке у одного вообще делали сплошную обрешётку, рубероид, а потом черепицу.

Это для меленьких углов, когда не только может снег задувать, но и дождем заливать.
снег, между прочим, действительно задувает при сильном ветре.

wolfgunst 24.01.2014 11:28

http://www.domsovetov.by/imagehostin...215e26b71c.png

Есть такая кровля. Может кто поделится фотографиями узла прохода вентканалов через конек.


Текущее время: 06:11. Часовой пояс GMT +3.

Powered by vBulletin® Version 3.8.8
Copyright ©2000 - 2026, vBulletin Solutions, Inc. Перевод: zCarot
Webmaster: OldEr
Реклама у нас
При публикации материалов с нашего сайта гиперссылка на Дом СоветовЪ обязательна