Всё о строительстве, отделке и ремонте домов и квартир. Форум, блоги, чат. Дом СоветовЪ.

Всё о строительстве, отделке и ремонте домов и квартир. Форум, блоги, чат. Дом СоветовЪ. (http://www.domsovetov.by/forum.php)
-   Перекрытия (http://www.domsovetov.by/forumdisplay.php?f=34)
-   -   Помогите разобраться с перекрытием цоколя (http://www.domsovetov.by/showthread.php?t=2063)

STASIKAN 04.10.2011 19:01

Помогите разобраться с перекрытием цоколя
 
Добрый день, полез сегодня в проект и у меня куча непонятных вопросов, добрался до проекта, т.к заметил что строители начали городить отсебятину, они решили залить мне монолитную ленту без всяких выемок под вентиляцию и перемычки, я надавал им по рукам и они быстренько все исправили, но наглазок, все уже залито размеры и фото сделаю позднее, но у меня куча вопросов как же мне перекрываться?
http://www.domsovetov.by/picture.php...pictureid=1627
http://www.domsovetov.by/picture.php...pictureid=1628
http://www.domsovetov.by/picture.php...pictureid=1629
http://www.domsovetov.by/picture.php...pictureid=1630
На фото с раскладкой блоков фбс в последнем ряду видны границы блоков в П-образной зоне и расстояние 1800, на фото с перемычками видна какае-то стена(перегородка) и расстояние 1200х2=2400 Выемки под балки в монолитной ленте не показаны, только тонкой красной линией показаны балки и плохо видны их границы - сиди гадай блин.
Дальше нашел перемычки в нете, сделал выборку перемычек, что на листе и вставил размеры, здесь еще больше поразился, перемычки высотой 220 есть и 140 (что с ней делать?) еще нашел какие-то металлические конструкции (связи) в которых я вообще ничего не понял, зачем и что с ними делать? Дальше перепад на ленте 2 см, следовательно в том районе высота ленты вообще 18 (уточню, когда перемеряю) вот и парадокс - поясните плиз, а то я впадаю в панику.

STASIKAN 04.10.2011 19:10

Плита 2 залазит на перемычку ПР3, а перемычка ПР3 выше армпояса (и была изначально выше по проекту)

SuperAnt 04.10.2011 20:15

А можно сюда разрез, (лист 18)

STASIKAN 05.10.2011 11:06

Можно, только рарез по моему мнению не очень удачный или нужно было еще один делать (дополнительно)
http://www.domsovetov.by/picture.php...pictureid=1631

STASIKAN 05.10.2011 11:36

Вот что на данный момент есть, накидал поясняющую схему. Куда и главное как мне дальше двигаться, что-то я в ступоре...
http://www.domsovetov.by/picture.php...pictureid=1632

Pavel_GGS 05.10.2011 13:24

немного конкретней по пунктам а торяюсь в ваших эмоциях :)

STASIKAN 05.10.2011 18:05

На схеме арм.пояса показано как залито на данный момент, все выемки пришлось делать за час до миксера, спешно и на глазок. На данный момент проблема такая, плиты под номером 2 и 1(на схеме перекрытия) ложатся на сам арм. пояс на постель как я понимаю порядка 2 см. При этом места где плита 2 и 1 стыкуются с местами плит 3 по высоте уже отличаются. Плиты 3 кладутся на перемычки ПР3 с одной стороны и ПР8, ПР4 с другой стороны, так вот перемычка ПР3 высотой 220 мм, а высота армпояса 180мм, и соответственно ПР4 - 220мм, а ПР8 - вообще 140 мм - это одна проблема.
Вторая, не понимаю зачем городить вместе перемычки ПР4 и ПР8, если можно кинуть ПР3? В проекте явные несостыковки, стена с дверным проемом в цоколе 2250 хотя внатуре по раскладке видно что там 1800 не больше. Перемычки ПР3 и ПР4 - отличаются только длинной, перемычка ПР8 - явно только для дверного проема - тогда почему у нее длина 1940 когда проем 1800? Насколько должна опираться перемычка вообще?
третья, что это за "эскизы стальных связей" я вообще не понял
Блин залезу в нете к этому проектанту (ГАПу) и оставлю там ему отзывов, а еще всю жизнь проработал с проектами и возраст внушал доверие.

STASIKAN 05.10.2011 18:08

Это пока основные вопросы, еще появятся после обмеров.

Pavel_GGS 05.10.2011 19:34

1. самонесущая опирание 120мм минимум. несущая мин 250мм.
2. связи это чтоб пустую ширину в 120мм заполнить. . мутно все это правда. особо никто так не делает. заказали бы плитную перемычку шириной 380мм. по цене выходит наверно тоже самое

посмотрите внимательно: ПР8 это самонесущая перегородочная перемычка. ПР4 перемычка проемная несущая плиту

STASIKAN 06.10.2011 10:26

Цитата:

Сообщение от Pavel_GGS (Сообщение 29980)
заказали бы плитную перемычку шириной 380мм. по цене выходит наверно тоже самое

http://www.trest16.by/index.php/plat...peremychkiplit
Это вот такую? кто у нас их делает? есть высота 220 и 190 как определить какую взять?
Еще поясните по азам, плиты кладутся на пояс на раствор - я правильно понимаю? Перемычка тоже должна ложиться на раствор + плита на нее тоже должна быть на растворе, что мне делать с перепадами, которые уже явно появляются - стяжкой потом выравнивать?

STASIKAN 06.10.2011 10:35

Это я к чему, плита №2 должна опираться на несущую стену №1 и №2, на стену №1 где лежит балка - она опираться не должна, а получается, что армпояс 18 см + 2 см постель под плитой итого 20см + толщина плиты (грубо), а перемычка сама по себе 22 см, + ее нужно положить на раствор, итого 24 см + постель под плиту 2 см + толщина плиты, т.е получается что плита ребром висит на перемычке.
Аналогичная картина с другой стороны
Если сдвинуть плиты как на втором рисунке, то они тогда залезут на стены (см.рис) и не факт, что только дойдут до середины, а если до самого конца? Но даже при этом, Плита №3 будет выше всех остальных плит по всему периметру в среднем на 6 см.
Что делать?
http://www.domsovetov.by/picture.php...pictureid=1634

Pavel_GGS 06.10.2011 10:43

то что плиту немного можно задвинуть в стену не проблема.
тут самый вопрос в отметках. либо стяжкой догонятся ( что не гут с материальной точки зрения), либо выводить плиты на одну плоскость. изначьно наверно косяк в отметках. надо было рабочим толкать от одного уровня низа перекрытий. т.е играть либо толщиной пояса либо уложить ниже сборную перемычку. либо вообще пояс дальше продлить. ( ну посчитать при этом сечение).

надо поиграть либом увеличением пояса либо опусканием перемычки. может проще перемычку опустить раздолбав опорные зоны ниже ?

STASIKAN 06.10.2011 13:46

Думаю если выдалбливать будет косяк, т.к на Стене №1 и №2 опирание перемычки больше метра, там на конце лежат блоки фбс 90, т.е после снятия с блока 5 см - он однозначно "слетит", потом придется звать кран и поднимать его, сбивать раствор и класть по-новому.
Мне предложили залить перемычки вручную, что-то меня сильно напрягает такое решение. У строителей весь расчет на пальцах, типо с запасом...и на пару веков хватит.

Pavel_GGS 06.10.2011 13:51

скинте схему проема точную. также максимально возможную высоту перемычки. я подберу армирование

STASIKAN 07.10.2011 10:14

Pavel_GGS, сенкс, сделаю фотки, произведу точный обмер по факту и выложу.

Семиход 24.10.2011 11:58

У меня проблемка проще.

Есть пролет 5,60. Перерывается двумя пустотными плитами 1,2х6,0. Одна сторона плит ложится на стену подвала, другая на перемычку. Длина пролета, перекрываемого перемычкой, - 2,5м, высота проема (от пола до плиты) - 2,3м.

В проекте перемычка решена вместе с армопоясом по блокам ФБС с одной стороны, а с другой - опирается на кирпичную кладку (ну и кирпичем выкладывается до верхней отметки).

Собственно волнует сечение перемычки, ее армирование, марка бетона?

Скоро морозы. Боюсь не успеет перемычка набрать прочности. Соответственно, не успею положить плиты... Может взять готовое изделие? Тогда какое?

Тимур 24.10.2011 13:09

Семиход, у меня друг делал один в один с вашей ситуацией. Он положил готовую балку, пролет получился метра три. С одной стороны опирается на фундамент из ФБС, с другой стороны тоже ФБС, но подложен кирпич до необходимого уровня. Высота балки 400-450 мм. В каждую сторону лежат плиты метра по 4-5. Балка тавровая, заводская.

Семиход 24.10.2011 13:23

Цитата:

Сообщение от Тимур (Сообщение 32715)
Семиход, у меня друг делал один в один с вашей ситуацией. Он положил готовую балку, пролет получился метра три. С одной стороны опирается на фундамент из ФБС, с другой стороны тоже ФБС, но подложен кирпич до необходимого уровня. Высота балки 400-450 мм. В каждую сторону лежат плиты метра по 4-5. Балка тавровая, заводская.

Мет. балка? А пожарники такую конструкцию пропустят?

Тимур 24.10.2011 14:55

Не металл, а жб балка.

Тимур 24.10.2011 14:55

Типа как в мостовых конструкциях используются

Семиход 25.10.2011 22:47

Цитата:

Сообщение от Семиход (Сообщение 32702)
У меня проблемка проще.

Есть пролет 5,60. Перерывается двумя пустотными плитами 1,2х6,0. Одна сторона плит ложится на стену подвала, другая на перемычку. Длина пролета, перекрываемого перемычкой, - 2,5м, высота проема (от пола до плиты) - 2,3м.

В проекте перемычка решена вместе с армопоясом по блокам ФБС с одной стороны, а с другой - опирается на кирпичную кладку (ну и кирпичем выкладывается до верхней отметки).

Собственно волнует сечение перемычки, ее армирование, марка бетона?

Скоро морозы. Боюсь не успеет перемычка набрать прочности. Соответственно, не успею положить плиты... Может взять готовое изделие? Тогда какое?

Товарищи, help!!! Время идет...

Тимур 27.10.2011 05:34

Используйте готовые ригеля
http://mgb.by/production/~showcat/id/63593
http://oaomgb.by/catalog/product_32/
там есть продукция вашей длины? весят они пару тонн - можно доставить и установить при помощи манипулятора.

Семиход 27.10.2011 14:51

Спасибо, конечно, но с доставкой в Гомель, думаю станут золотыми )

Pavel_GGS 27.10.2011 14:57

а сверху перемычки стены выше пойдут ? н и высота пояса какая ?

Семиход 27.10.2011 16:17

В этой части стен выше не будет. На втором этаже ситуация точно такая же - в этом месте будет проход.

Высота 300 мм

Pavel_GGS 27.10.2011 16:28

Вложений: 1
это при ширине перемычки-пояса 380мм. с большим запасом.
при ширине перемычки в 200-250мм добавте снизу еще один стержень.
ну и чтоб вообще прогибов небыло (они и так мелкие) подоприте перемычку при монтаже плит. потом зачеканьте продольные торцы между плитами. после зачеканки через неделки 1-2 уберите опоры. плиты в сжатой зоне заклинит. и жесткость увеличится не по детски

Семиход 27.10.2011 16:33

Большое спасибо. А можно положить вместо 2х16 3х12?

Семиход 27.10.2011 16:36

к слову, по ширине зальется по ширине блока - 400 или 500 мм. Не знаю, какие ФБС туда останутся.

Pavel_GGS 27.10.2011 16:44

2ф16 это 4,02см2
3ф12 это это 3,36см2
небольшое уменьшение по площади.
чтоб тут не вылизывать несущую способность положите 4ф12

Семиход 27.10.2011 16:48

Цитата:

Сообщение от Pavel_GGS (Сообщение 33275)
2ф16 это 4,02см2
3ф12 это это 3,36см2
небольшое уменьшение по площади.
чтоб тут не вылизывать несущую способность положите 4ф12


логиично, понял.
Спасибо.

Тимур 31.10.2011 07:10

Цитата:

Сообщение от Семиход (Сообщение 33256)
Спасибо, конечно, но с доставкой в Гомель, думаю станут золотыми )

Это для примера, в Гомеле есть свой завод ЖБИ. Продукция на всех заводах практически одинаковая, поэтому такие же ригеля вы сможете найти и там.

STASIKAN 02.11.2011 11:21

Цитата:

Сообщение от Pavel_GGS (Сообщение 30102)
скинте схему проема точную. также максимально возможную высоту перемычки. я подберу армирование

http://www.domsovetov.by/picture.php...pictureid=1828
Был в дальней командировке, только приехал, вот схема того, что получилось. Думаю может размеры плит поменять, а то получу торец плиты практически за "рамками" фундамента. Но пока нужно решить, что же делать с перемычками.

Pavel_GGS 02.11.2011 11:35

блин тяжело въехать так быстро. мысль уже потеряна. ща по теме пробегусь

Pavel_GGS 02.11.2011 11:40

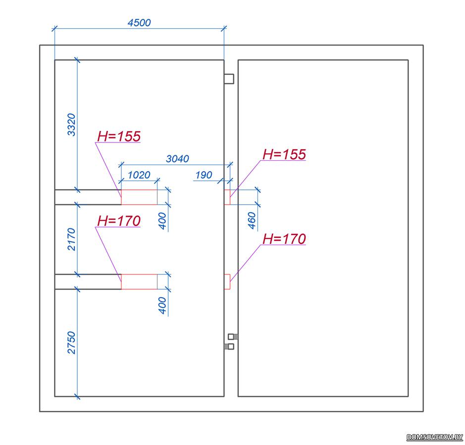
по рисунку и фото в лс размер 3040 это до пояса.
в итоге 3040-1020-190 пролет чуть меньше 2м.
поверху перемычек в пролете стен стоять не будет ? высота перемычки будет равна высоте пояса. маловато. но если зальете ее с верхним зубом то будет совсем отлично. если так то скажите. посчитаю.
ps у меня дома на пролет 2метра залита еремычка 200мм на пролет одностороннего опирания 3,6 почти как у вас.

STASIKAN 02.11.2011 14:48

не совсем понял фразу?
Цитата:

Сообщение от Pavel_GGS (Сообщение 34094)
поверху перемычек в пролете стен стоять не будет ?

На эти перемычки лягут плиты 2400х1500 (2шт) и будет опирание лестницы - это выемка под лестничный марш.
Что значит с верхним зубом?
Вниз перемычку можно опустить хоть на 30 см - это не критично + можно засверлить в фбс арматуру главное чтоб выдержала, лучше с запасом.
Как чувствовал, что строители нахомутают...блин.

Pavel_GGS 02.11.2011 15:15

если можно та разрез по лестнице.
особых проблем нет. засверливаться не надо.
сечение перемычки чтоб не опускаться будет такое
__
I I_
I___I

с одной стороны лягут плиты

STASIKAN 02.11.2011 17:08

в четвертом посте на первом листе есть разрез, там видны плиты между подвалом и первым этажом.
По балке, может лучше опуститься? проблематично будет залить такую балку или в 2-а этапа, т.е плиту саму и выступ потом как я понимаю. В один этап же не зальешь?

Pavel_GGS 03.11.2011 20:02

STASIKAN если сможете отдолбать от блога в глуб него по горизонтали 250мм и по вертикали 100мм, то это будет идеальный вариант. если нет то порешаем другим ранее предложенным вариантом с зубом. тоже нормально

STASIKAN 04.11.2011 09:59

Pavel_GGS, не совсем понял где долбать?

Pavel_GGS 04.11.2011 12:12

Вложений: 1
угол ФБС бля опирания перемычки


Текущее время: 18:20. Часовой пояс GMT +3.

Powered by vBulletin® Version 3.8.8
Copyright ©2000 - 2025, vBulletin Solutions, Inc. Перевод: zCarot
Webmaster: OldEr
Реклама у нас
При публикации материалов с нашего сайта гиперссылка на Дом СоветовЪ обязательна