выберите цвет:
Всё о строительстве, отделке и ремонте домов и квартир. Форум, блоги, чат. Дом СоветовЪ. Строим вместе!
Вернуться   > >

Моя стройка! Описание своего строительства. Фотоотчёты и хронология.

Ответ
Опции темы Оценить тему Опции просмотра
Старый 13.09.2014, 04:04   #1 или 199120
Дальний кордон
Карапузо
Регистрация: 13.09.2014
Адрес: Беларусь
Сообщений: 4
Репутация: 10
Хорошо ЭкоФерма

Добрый день!

Это не обычная тема о стройке дома, к которым привыкла уважаемая публика. Это строительство ЭкоФермы.

Что такое ЭкоФерма в нашем понимании:

- разведение животных и птиц непромышленными методами ( без гормонов роста, антибиотиков, без применения комбикормов с неизвестным составом, и еще много без чего )
- органическое земледелие
- традиционный деревенский отдых
- племенное разведение животных и птиц

Много времени ушло на выбор места для проекта. Должен быть по особенному живописный и приятный участок.

И так мы начинаем:

Первое, что произошло с нами - мы завели кавказский овчарок. Это две очень динамичные "девочки" из самого титулованного российского питомника по "кавказцам". Экстерьер великолепный, характер чувствуется уже в детском возрасте.

У нас не было на участке электричества, хотя сама трансформаторная подстанция находится по границе участка. Полтора месяца ушло на согласования и подключение.

Первое здание, которое должно появится, будет дом-баня. Это позволит решить массу организационных и бытовых вопросов, а самое главное жить и работать прямо на месте - следовательно работать более эффективно и быстрее. На этом доме "тренируемся" и смотрим какие правки следует внести в наш проект. Таких домов-бань будет в перспективе.

Фундамент ленточный. Брус профилированный.




Будущая парилка:



Вид с террасы:



Крупный план:






Оставайтесь с нами!
Не переключайте канал.

Вы можете следить за нами в ЖЖ: http://dkordon.livejournal.com/
Дальний кордон вне форума Ответить с цитированием
Сказали спасибо: 6
21.12.2012
Спонсор
Я здесь родился!
 
Регистрация
Чтобы убрать этот блок - надо зарегистрироваться!
Здесь может быть ваша реклама!
Старый 13.09.2014, 09:06   #2 или 199121
Вик
Мне всё по.....
 
Аватар для Вик
Регистрация: 04.06.2011
Сообщений: 6,090
Репутация: 29
Знак отличника: За отличие! 
По умолчанию

Собачки это добре, само то для экофермы, посинтхан знатный сварить можно.
Вик вне форума Ответить с цитированием
Старый 13.09.2014, 09:15   #3 или 199122
polyzadumchivy
Я тут живу!
 
Аватар для polyzadumchivy
Регистрация: 05.06.2011
Адрес: Я проживаю на дне океана
Сообщений: 4,072
Записей в дневнике: 19
Репутация: 22
Орден трудового красного Пушкина: За победу в конкурсе рассказов 
По умолчанию

Меня заинтересовал традиционный деревенский отдых. Т.е. будете гнать?
polyzadumchivy вне форума Ответить с цитированием
Старый 13.09.2014, 10:56   #4 или 199128
sergN
Я тут живу!
 
Аватар для sergN
Регистрация: 17.05.2011
Адрес: минск
Сообщений: 15,735
Записей в дневнике: 5
Репутация: 68
Золотые часы: За хронометраж событий  Орден пятиконечной звезды: За постоянную практику полезных советов, основанных на собственном опыте 
По умолчанию

виски(зерновой)...джин(можжевельника насадить) граппа(виноград белорусский).
на худой конец кольвадос.
если есть водоем- гуси/утки табунами (правда водоем сразу убьется пометом)
sergN вне форума Ответить с цитированием
Старый 13.09.2014, 16:32   #5 или 199138
Дальний кордон
Карапузо
Регистрация: 13.09.2014
Адрес: Беларусь
Сообщений: 4
Репутация: 10
Радость

Цитата:
Сообщение от polyzadumchivy Посмотреть сообщение
Меня заинтересовал традиционный деревенский отдых. Т.е. будете гнать?
Только в медицинских целях.
А если серьезно, то для городских жителей планируется столько событийных предложений, что скучать не получится.
Дальний кордон вне форума Ответить с цитированием
Старый 13.09.2014, 16:36   #6 или 199139
Дальний кордон
Карапузо
Регистрация: 13.09.2014
Адрес: Беларусь
Сообщений: 4
Репутация: 10
По умолчанию

sergN, водоема будет два. Один для рыбалки и проруби в зимний период, а второй для гусей/уток.
Дальний кордон вне форума Ответить с цитированием
Сказал cпасибо:
Старый 13.09.2014, 22:43   #7 или 199148
sergN
Я тут живу!
 
Аватар для sergN
Регистрация: 17.05.2011
Адрес: минск
Сообщений: 15,735
Записей в дневнике: 5
Репутация: 68
Золотые часы: За хронометраж событий  Орден пятиконечной звезды: За постоянную практику полезных советов, основанных на собственном опыте 
По умолчанию

только пчел не селите рядом. задолбают..
фазаны любят ночевать на деревьях.
гуси с утками тусуются вместе.
индейки самостоятельные.
sergN вне форума Ответить с цитированием
Старый 13.09.2014, 23:25   #8 или 199149
Славка
Участковый
 
Аватар для Славка
Регистрация: 04.05.2011
Сообщений: 13,049
Записей в дневнике: 25
Рецепты: 1
Репутация: 101
Золотая звезда: За заслуги Дом СоветовЪ! 
По умолчанию

О! Такого у нас ещё не было!
Славка вне форума Ответить с цитированием
Сказали спасибо: 2
Старый 14.09.2014, 09:48   #9 или 199159
purler
Я тут живу!
Регистрация: 20.05.2011
Сообщений: 2,760
Репутация: 21
По умолчанию

И это.. Фотографий бы почаще выкладывали тут, интересно же.
Если не жалко то чертежик помещений бани выложите и про фундамент мало сказали..
purler вне форума Ответить с цитированием
Старый 15.09.2014, 01:17   #10 или 199189
Дальний кордон
Карапузо
Регистрация: 13.09.2014
Адрес: Беларусь
Сообщений: 4
Репутация: 10
По умолчанию

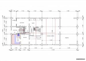
purler, по чертежам:

Есть два проекта бани.

Малую вы уже видите на фото - ее начали складывать.
Вторая баня ( она чуть больше ) - делаем на следующей неделе подготовку под фундамент и заказываем у производителя изготовление дома-бани.

План первого этажа малой бани:



План первого этажа большой бани:



План второго этажа большой бани:

Дальний кордон вне форума Ответить с цитированием
Сказали спасибо: 3
Ответ
Поделись ссылкой на эту тему:


Ваши права в разделе
Вы не можете создавать новые темы
Вы не можете отвечать в темах
Вы не можете прикреплять вложения
Вы не можете редактировать свои сообщения

BB коды Вкл.
Смайлы Вкл.
[IMG] код Вкл.
HTML код Выкл.

Быстрый переход

ЭкоФерма Рейтинг: из 5 на основе 0 оценок.
Дом СоветовЪ, Беларусь, Минск
Старт:
Старт:
Старт:


Здесь присутствуют: 1 (пользователей: 0 , гостей: 1)
 


Текущее время: 19:52. Часовой пояс GMT +3.


Powered by vBulletin® Version 3.8.8
Copyright ©2000 - 2026, vBulletin Solutions, Inc. Перевод: zCarot
Webmaster: OldEr
Реклама у нас
При публикации материалов с нашего сайта гиперссылка на Дом СоветовЪ обязательна