|  | Строим вместе! |  | 
| 
 | |||||||
| Перекрытия Междуэтажные перекрытия, перемычки и несущие конструкции, полы по грунту | 
|  | 
|  | Опции темы | Рейтинг:   | Опции просмотра | 
|  08.05.2013, 01:14 | #1 или 142343 | 
| Карапузо |  Опирание плит перекрытия. Какая нужна балка? 
			
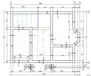
			Господа, подскажите плз, как расчитать балку под плиты перекрытия при пролете 4 метра. Может кто заливал такую? Или может готовую можно купить и залить в монолитный пояс первого этажа. План на картинке. Черное - фундамент Синее - стены комнаты Красное - балка Зеленые - плиты перекрытия Дом одноэтажный с мансардой, стены - керамзитобетон. Заранее благодарю.   | 
|   |   | 
|  08.05.2013, 08:55 | #2 или 142361 | 
| Я тут живу! |   
			
			по степени армирования не подскажу, а готовые перемычки есть такие типа ПГ, сделана  с полкой под плиты, можно на эту полку ложить, можно и выше (я разворачивал полкой наружу и полку потом заложил кирпичами), перемычка по сечению довольно массивная. По стандартной их длине не подскажу, но делают и под заказ (мне делали 4800 из 6000 (6ПГ60-31).  Просто плоских готовых наверное нет, точно не знаю, но залить на месте конечно тоже можно. У указанной ПГ несущая способность 3100 кг/ метр, у вас если выше ничего опираться не будет, там нагрузка около 1000 кг/метр) ---------- Сообщение добавлено в 07:55 ---------- Предыдущее было в 07:52 ---------- Но судя по рисунку, там где синяя линия, сделать частично несущей и на неё положить (или залить) более короткую плоскую перемычку. | 
|   |   | 
|  08.05.2013, 10:42 | #3 или 142392 | 
| Карапузо |   
			
			Sansan, подскажите плз где заказывали? Еще обоатите внимание, что на левую часть перемычки еще одна короткая плита частично опирается. Что то я волнуюсь за несущую способность, при 3100кг/м плита 6,3х1,5 весит 3.3тн. Т.е на метр уже получается 1,1тн с одной строны. А там еще перегородки мансарды, да и крыша незнаюна что опирается. А как сделать часть синей стены несущей? Под ней то фундамента нет((( | 
|   |   | 
|  08.05.2013, 10:46 | #4 или 142394 | 
| Я тут живу! |   
			
			МЖБ на ул.Кабушкина, а забирал с МЖБ на пер.Твёрдый. Насчёт длины нестандартной, по заявлению, так и в накладной написано.  p/s под несущую стенку фундамент надо делать, а так более простой вариант был бы. | 
|   |   | 
|  08.05.2013, 11:48 | #5 или 142403 | |
| Карапузо |   Цитата: 
 Фундамент уже залит такой, собираюсь еще подливать 30 см фундамента чтоб его поднять. Может можно продлить синюю часть фундамента до угла и там сделать несущую колонну? | |
|   |   | 
|  08.05.2013, 16:29 | #6 или 142444 | 
| Я тут живу! |   
			
			Keeper,  в вашем прайсе далеко не весь перечень продукции.
		 | 
|   |   | 
|  17.06.2013, 18:44 | #7 или 147097 | 
| Кому няка |   
			
			У меня тоже две перемычки (2,5 и 3 м) планируются. Решил, что правильно заармировать и залить вместе с армопоясом дешевле, чем заказывать, потом везти, потом краном поднимать и монтировать. По армированию Pavel_GGS сможет помочь. Думаю, ему это не составит труда - подобных вопросов каждый день сыпется... | 
|   |   | 
|  | 
|  Похожие темы | ||||
| Тема | Автор | Раздел | Ответов | Последнее сообщение | 
| Какая стоимость отделочных работ сегодня? | Мраморный Александр | Внутренняя отделка | 294 | 02.09.2012 22:49 | 
| Всё про резку плит перекрытия (вопрос-ответ) | vangelis | Перекрытия | 24 | 16.07.2012 13:53 | 
| Какая комфортная температура в доме? | Павел | Отопление | 72 | 04.02.2012 00:55 | 
| какая лучшая программа по ландшафту ? | Pavel_GGS | Дизайн | 6 | 15.11.2011 08:46 | 
| перемычка и балка??? | Наташка1982 | Перекрытия | 2 | 21.08.2011 22:12 | 
| 
 | 
 | 
| Опирание плит перекрытия. Какая нужна балка? Рейтинг:5.00 из 5 на основе 8 оценок. | Дом СоветовЪ,
  Беларусь,
  Минск
  
    
  
  
  
  
  Раздаём плюшки!
  Старт:
   
    Получи бонус!
  Старт:
  Получаем скидки!
  Старт:
  | 
| Здесь присутствуют: 1 (пользователей: 0 , гостей: 1) | |