выберите цвет:
Всё о строительстве, отделке и ремонте домов и квартир. Форум, блоги, чат. Дом СоветовЪ. Строим вместе!
Вернуться   > >

Моя стройка! Описание своего строительства. Фотоотчёты и хронология.

Ответ
Опции темы Оценить тему Опции просмотра
Старый 23.02.2021, 12:48   #1 или 327888
Vov4ik
Пионэр
Регистрация: 11.01.2014
Адрес: Брест
Сообщений: 172
Репутация: 11
По умолчанию Свершилось :) (мечты в реальность)

Ну вот и свершилось, наконец-то спустя много лет приобретен участок со старым домом и можно погрузиться в самые приятные годы жизни - строительство своего родового гнезда.
Vov4ik вне форума Ответить с цитированием
Старый 23.02.2021, 12:52   #2 или 327889
Vov4ik
Пионэр
Регистрация: 11.01.2014
Адрес: Брест
Сообщений: 172
Репутация: 11
По умолчанию

что имеем: старый деревянный дом, что хотим - новый дом из газобетона. За основу берем польский проект дома Juliusz с небольшими изменениями (убираем эркер и немного планировку 1го этажа)
Vov4ik вне форума Ответить с цитированием
Старый 23.02.2021, 12:55   #3 или 327890
Vov4ik
Пионэр
Регистрация: 11.01.2014
Адрес: Брест
Сообщений: 172
Репутация: 11
По умолчанию

Старый дом на участке есть, поэтому производить буду реконструкцию, и сразу назрел вопрос к знающим: сделал проект, разрешение на реконструкцию есть, получил согласование проекта у архитектора района - можно начинать??? или еще что-то нужно?
Vov4ik вне форума Ответить с цитированием
Старый 15.09.2021, 15:29   #4 или 329139
Вячеслав Д
Карапузо
Регистрация: 15.09.2021
Сообщений: 2
Репутация: 10
По умолчанию

Отличный план. Есть к чему стремится, как говорится, ну и терпения, конечно.
Вячеслав Д вне форума Ответить с цитированием
Сказал cпасибо:
Старый 23.02.2021, 18:22   #5 или 327892
sergN
Я тут живу!
 
Аватар для sergN
Регистрация: 17.05.2011
Адрес: минск
Сообщений: 15,727
Записей в дневнике: 5
Репутация: 68
Золотые часы: За хронометраж событий  Орден пятиконечной звезды: За постоянную практику полезных советов, основанных на собственном опыте 
По умолчанию

много денех и терпения.
план полетов.
что с сетями?
вагончик на участке.
сортир..
sergN вне форума Ответить с цитированием
Старый 24.02.2021, 10:14   #6 или 327896
Vov4ik
Пионэр
Регистрация: 11.01.2014
Адрес: Брест
Сообщений: 172
Репутация: 11
По умолчанию

Цитата:
Сообщение от sergN Посмотреть сообщение
много денех и терпения.
план полетов.
что с сетями?
вагончик на участке.
сортир..
Спасибо, план полетов очень прост: на этот год - снос старого дома + заливка фундамента. Сети все есть (старый дом с подводом газа, воды, света и центральной канализации). Единственное, что щиток электроэнергии хочу выносить на границу (как раз этим занимаюсь. Вагончик не нужен - есть сарай

А вот и вид сверху на участок
Vov4ik вне форума Ответить с цитированием
Сказал cпасибо:
Старый 24.02.2021, 07:38   #7 или 327894
Scorpy
социепат
 
Аватар для Scorpy
Регистрация: 06.06.2011
Адрес: кэлх
Сообщений: 4,066
Записей в дневнике: 66
Репутация: 21
По умолчанию

Цитата:
Сообщение от Vov4ik Посмотреть сообщение
(убираем эркер и немного планировку 1го этажа)
шепотом ( продли эркер на второй этаж, особенно если юго-восток)
Scorpy вне форума Ответить с цитированием
Старый 24.02.2021, 10:06   #8 или 327895
Vov4ik
Пионэр
Регистрация: 11.01.2014
Адрес: Брест
Сообщений: 172
Репутация: 11
По умолчанию

продлить не получится, зажат немного по габариту, не позволит охранная зона, итак дом прямо до нее
Vov4ik вне форума Ответить с цитированием
Старый 24.02.2021, 15:15   #9 или 327900
sergN
Я тут живу!
 
Аватар для sergN
Регистрация: 17.05.2011
Адрес: минск
Сообщений: 15,727
Записей в дневнике: 5
Репутация: 68
Золотые часы: За хронометраж событий  Орден пятиконечной звезды: За постоянную практику полезных советов, основанных на собственном опыте 
По умолчанию

тогда надо тереть за плаеировку и конструктив дома.
щитток на улице только вводной-счетчик узо и увтомат. и розетка 1
остальное в доме в щитке.
после понимания планировки-бежать к районному архитектору согласовывать...перестройку...он знает как это обозвать.
потом газовики (план то новый-будут вонять...)
sergN вне форума Ответить с цитированием
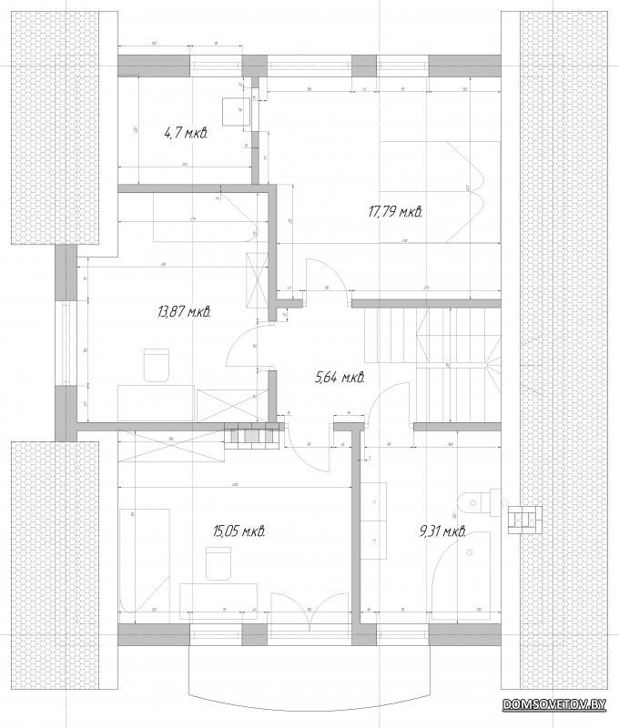
Старый 25.02.2021, 13:04   #10 или 327907
Vov4ik
Пионэр
Регистрация: 11.01.2014
Адрес: Брест
Сообщений: 172
Репутация: 11
По умолчанию

В архитектуре все согласовано, вот собственно и планировочка
Vov4ik вне форума Ответить с цитированием
Ответ
Поделись ссылкой на эту тему:


Похожие темы
Тема Автор Раздел Ответов Последнее сообщение
Антискользин. Миф или реальность? Славка Материалы 25 26.11.2018 11:43
Серый шум - реальность!!! Александр Иосифович Оффтоп 5 04.05.2016 14:13
Обещания: мечты и реальность. ozzie Оффтоп 7 15.02.2015 18:45
Строительство дома: мечты и реальность! Правила конкурса Славка Конкурс "Строительство дома: мечты и реальность!" 23 22.10.2012 23:02
Конкурс: "Строительство дома: мечты и реальность!" Славка Новости 0 16.08.2012 16:56

Ваши права в разделе
Вы не можете создавать новые темы
Вы не можете отвечать в темах
Вы не можете прикреплять вложения
Вы не можете редактировать свои сообщения

BB коды Вкл.
Смайлы Вкл.
[IMG] код Вкл.
HTML код Выкл.

Быстрый переход

Свершилось :) (мечты в реальность) Рейтинг: из 5 на основе 0 оценок.
Дом СоветовЪ, Беларусь, Минск
Старт:
Старт:
Старт:


Здесь присутствуют: 1 (пользователей: 0 , гостей: 1)
 


Текущее время: 08:59. Часовой пояс GMT +3.


Powered by vBulletin® Version 3.8.8
Copyright ©2000 - 2026, vBulletin Solutions, Inc. Перевод: zCarot
Webmaster: OldEr
Реклама у нас
При публикации материалов с нашего сайта гиперссылка на Дом СоветовЪ обязательна