выберите цвет:
Всё о строительстве, отделке и ремонте домов и квартир. Форум, блоги, чат. Дом СоветовЪ. Строим вместе!
Вернуться   > >

Моя стройка! Описание своего строительства. Фотоотчёты и хронология.

Ответ
Опции темы Рейтинг: Рейтинг темы: 5.00, голосов 1 Опции просмотра
Старый 01.09.2018, 15:07   #61 или 311858
hi_vikky
Карапузо
Регистрация: 29.08.2018
Адрес: Минск
Сообщений: 22
Репутация: 10
По умолчанию

Пока ждем возведения стен, дорабатываем цоколь.
Плиты перекрытия пустотные, двух размеров: 5,7 (10 штук) и 6,6 м (9 шт), ширина 1,2 м. Оставили два проема: небольшой для ввода коммуникаций на кухню, и большой - для лестницы вниз.
Всего с учетом доставки и монтажа 6 298 р.
Сейчас купили бетономешалку и потихоньку заделываем швы.
Параллельно отец делает гидроизоляцию: два слоя мастики и сверху гидроизол пленка.
hi_vikky вне форума Ответить с цитированием
Сказали спасибо: 2
21.12.2012
Спонсор
Я здесь родился!
 
Регистрация
Чтобы убрать этот блок - надо зарегистрироваться!
Здесь может быть ваша реклама!
Старый 01.09.2018, 15:15   #62 или 311859
hi_vikky
Карапузо
Регистрация: 29.08.2018
Адрес: Минск
Сообщений: 22
Репутация: 10
По умолчанию

По поводу проекта. Дом одноэтажный, квадратный, с четырёхскатной крышей. Думаем, делать ли комнатку под крышей или сделать саму крышу более пологую и на комнатку забить.
Сам проект эскизный, для согласования. В электронном варианте поищу, пока фотка. Сейчас думаем над расстановкой мебели, может, немного поменяем планировку. Все кажется таким крохотным.

Несущая центральная стена будет из кирпича и возводиться сразу со стенами дома, остальные пока не знаем, может, опять керамзитобетонные, только 90 мм.

hi_vikky вне форума Ответить с цитированием
Старый 01.09.2018, 16:03   #63 или 311860
Korvet068
Не раз долбаный нераздолбаный электрик
 
Аватар для Korvet068
Регистрация: 26.09.2011
Адрес: Минск, Молодечно
Сообщений: 5,966
Репутация: 28
Знак отличника: За отличие! 
По умолчанию

Цитата:
Сообщение от hi_vikky Посмотреть сообщение
Думаем, делать ли комнатку под крышей или сделать саму крышу более пологую и на комнатку забить.
Отсутствие мансарды от словоо вообще и наличие холодного чердака резко упрощают работы в подкровельном пространстве. Утеплять крышу не нужно, не нужна пароизоляция с внутренней стороны.. короче много чего отпадёт за ненадобностью
Korvet068 вне форума Ответить с цитированием
Сказали спасибо: 3
Старый 01.09.2018, 17:43   #64 или 311861
a.yenzh
Дипутат
Регистрация: 18.04.2017
Сообщений: 457
Репутация: 12
По умолчанию

Чего не могу понять так это почему все берут щелевые котельная в проекте отсутствует, комнаты мелковатые, коридор слишком большой. Если комната наверху получается небольшая, я бы не делал - проще кровля и лестница не нужна(освобождается место на первом)
a.yenzh вне форума Ответить с цитированием
Сказали спасибо: 2
Старый 01.09.2018, 21:12   #65 или 311868
sergN
Я тут живу!
 
Аватар для sergN
Регистрация: 17.05.2011
Адрес: минск
Сообщений: 15,727
Записей в дневнике: 5
Репутация: 68
Золотые часы: За хронометраж событий  Орден пятиконечной звезды: За постоянную практику полезных советов, основанных на собственном опыте 
По умолчанию

@a.yenzh, позняк метаться.
зачем человек это выложил?
инстаграмм? шо ли..
фасадов нет..визуализации нет.
что я (например) должен тут сказать?
я никуя не вижу. ни как дизайнер , ни как инженер.
(ни визуализации , ни сетей...)
отчет об очередной стройке чего-то , что увидим апасля?
я такое лет 30 назад рисовал. (фиговые поэтажки)
sergN вне форума Ответить с цитированием
Старый 01.09.2018, 21:51   #66 или 311879
a.yenzh
Дипутат
Регистрация: 18.04.2017
Сообщений: 457
Репутация: 12
По умолчанию

@sergN, еще не поздно.@hi_vikky, вам совет, посмотрите планировки проектов, найдите то что вам подходит больше всего и откорректируйте под себя. С нуля самому очень сложно, очень много ньюансов. Текущая планировка очень неудачная с моей точки зрения: вроде большой дом строите, а комнаты по 10 м. Общий Санузел рядом со спальней тоже не очень.
a.yenzh вне форума Ответить с цитированием
Сказал cпасибо:
Старый 01.09.2018, 22:13   #67 или 311886
Dimagr
Пионэр
Регистрация: 02.10.2016
Сообщений: 106
Репутация: 10
По умолчанию

И вентканалы придется высоко поднимать
Dimagr вне форума Ответить с цитированием
Старый 02.09.2018, 09:57   #68 или 311909
purler
Я тут живу!
Регистрация: 20.05.2011
Сообщений: 2,760
Репутация: 21
По умолчанию

Если цокольный этаж выше 2х метров то топочную можно там разместить. Только разобраться какой газовый котел и какие там требования, чтоб сразу сделать вентканал к примеру.
То что топочная понадобится это точно. Еще и не исключено что где-то на этаже надо будет гребенки поставить.

А если вам 3 спальни нужны и все вписать в один этаж, то мне кажется вполне нормальная планировка.
Может доп звукоизоляцию тока сделать между ванной и спальней.

Фасады бы увидеть, может еще чего посоветовать можно было.
По поводу вентканалов соглашусь, как минимум кажется легко подвинуть вентканалы между кухней и жилой ближе к центру дома. Вентканалы у края дома выливаются в высоченную трубу, чтоб была нормальная тяга.. или летом тяги не будет вообще.
purler вне форума Ответить с цитированием
Сказали спасибо: 2
Старый 08.09.2018, 16:49   #69 или 312165
ezhik97
Пионэр
Регистрация: 09.06.2012
Сообщений: 181
Репутация: 11
По умолчанию

Цитата:
Сообщение от Scorpy Посмотреть сообщение
еще и при разгрузке ламают стропами. кранавщика сразу в сад и вычесть из зарплаты.
Разгружать надо специальными вилами - цепляются к крану (манипулятору) и берут за поддон. Все будет целое.
ezhik97 вне форума Ответить с цитированием
Старый 05.10.2018, 16:29   #70 или 312766
hi_vikky
Карапузо
Регистрация: 29.08.2018
Адрес: Минск
Сообщений: 22
Репутация: 10
По умолчанию

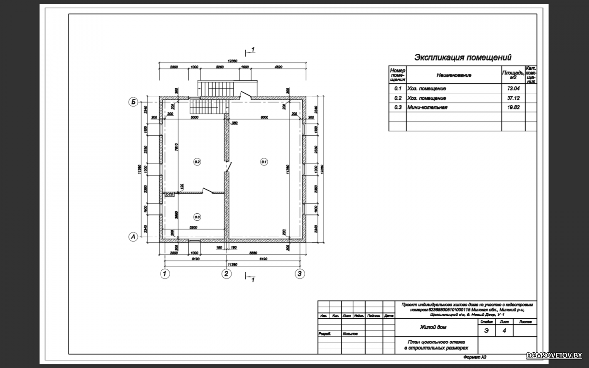
Прикрепляю проект, который нам отдал архитектор. Тут видны фасады.
Котельная будет в цокольном этаже.
hi_vikky вне форума Ответить с цитированием
Ответ
Поделись ссылкой на эту тему:


Похожие темы
Тема Автор Раздел Ответов Последнее сообщение
Во дворе трава на траве дрова Kuzbar Благоустройство 21 08.10.2017 23:20
Наша стройка в Жуковке vitalorpik Моя стройка! 78 18.06.2015 13:45
наша стройка. нужен совет и критика. Руслан Пинск Моя стройка! 55 28.08.2014 14:10
Фото Минска. Вот вам и наша безопастность.... Хатанга Оффтоп 15 22.09.2011 14:37
Наша жизнь- стройка, стройка- наша жизнь Татьяна иК Конкурс "Строительная история 2011" 8 19.08.2011 23:20

Ваши права в разделе
Вы не можете создавать новые темы
Вы не можете отвечать в темах
Вы не можете прикреплять вложения
Вы не можете редактировать свои сообщения

BB коды Вкл.
Смайлы Вкл.
[IMG] код Вкл.
HTML код Выкл.

Быстрый переход

Наша стройка в Новом Дворе Рейтинг:5.00 из 5 на основе 1 оценок.
Дом СоветовЪ, Беларусь, Минск
Старт:
Старт:
Старт:


Здесь присутствуют: 1 (пользователей: 0 , гостей: 1)
 


Текущее время: 07:43. Часовой пояс GMT +3.


Powered by vBulletin® Version 3.8.8
Copyright ©2000 - 2026, vBulletin Solutions, Inc. Перевод: zCarot
Webmaster: OldEr
Реклама у нас
При публикации материалов с нашего сайта гиперссылка на Дом СоветовЪ обязательна