выберите цвет:
Всё о строительстве, отделке и ремонте домов и квартир. Форум, блоги, чат. Дом СоветовЪ. Строим вместе!
Вернуться   > >

Моя стройка! Описание своего строительства. Фотоотчёты и хронология.

Ответ
Опции темы Рейтинг: Рейтинг темы: 4.50, голосов 22 Опции просмотра
Старый 12.03.2021, 23:07   #1 или 327982
welaribo
Я тут живу!
Регистрация: 13.09.2015
Адрес: Минск
Сообщений: 1,253
Репутация: 11
По умолчанию Стройка welaribo

Всем привет. Весной начинаю строить дом. Это первая стройка для меня. Советы и помощь более опытных застройщиков по ходу стройки приветствуется :-).

Несколько фото из проекта:

welaribo вне форума Ответить с цитированием
Сказали спасибо: 7
21.12.2012
Спонсор
Я здесь родился!
 
Регистрация
Чтобы убрать этот блок - надо зарегистрироваться!
Здесь может быть ваша реклама!
Старый 12.03.2021, 23:12   #2 или 327983
welaribo
Я тут живу!
Регистрация: 13.09.2015
Адрес: Минск
Сообщений: 1,253
Репутация: 11
По умолчанию

Первоначальное состояние участка весной 2020:

Последний раз редактировалось welaribo; 12.03.2021 в 23:40.
welaribo вне форума Ответить с цитированием
Сказали спасибо: 2
Старый 12.03.2021, 23:21   #3 или 327984
welaribo
Я тут живу!
Регистрация: 13.09.2015
Адрес: Минск
Сообщений: 1,253
Репутация: 11
По умолчанию

Купил мачете + пару ножовок + топор и начал расчищать участок:
welaribo вне форума Ответить с цитированием
Сказали спасибо: 2
Старый 12.03.2021, 23:32   #4 или 327985
welaribo
Я тут живу!
Регистрация: 13.09.2015
Адрес: Минск
Сообщений: 1,253
Репутация: 11
По умолчанию

Как только повалил всю древесину - восстановил границы участка и изготовил земельное дело.


Как оказалось одна из границ участка была на территории соседского участка за временным строительным заборов. Созвонился с соседом. Одну из его границ при стройке снесла ТО-ка и он ставил временный строительный забор на глаз. В целом обсудили, все ОК.
welaribo вне форума Ответить с цитированием
Старый 12.03.2021, 23:39   #5 или 327986
welaribo
Я тут живу!
Регистрация: 13.09.2015
Адрес: Минск
Сообщений: 1,253
Репутация: 11
По умолчанию

Сложил всю древесину в кучи и оставил сохнуть на пару месяцев.
welaribo вне форума Ответить с цитированием
Старый 12.03.2021, 23:48   #6 или 327987
welaribo
Я тут живу!
Регистрация: 13.09.2015
Адрес: Минск
Сообщений: 1,253
Репутация: 11
По умолчанию

Через пару месяцев уже летом спалил все кучи.
welaribo вне форума Ответить с цитированием
Старый 13.03.2021, 00:10   #7 или 327988
welaribo
Я тут живу!
Регистрация: 13.09.2015
Адрес: Минск
Сообщений: 1,253
Репутация: 11
По умолчанию

Делать или не делать геологию? Сначала поговорил с соседями - у кого какой фундамент? Все сказали что пески. Но по составу грунта были разные ответы: кто-то говорил что пески с камнями, кто-то - просто пески. По типу устройства фундаменты были разные в округе: свайно-ростверковый со сваями 2-4м, лента, забивные сваи.

Решил сделать мини-геологию и прокопать лопатой ямки насколько смогу в глубину.


В итоге выкопал 3 ямки на 1.2-1.3 метра. Что обнаружил - разные пески на разной глубине: рыжий с мелкими камушками и беленький песочек без камней, белый песок копался легко, рыжий - сложнее, выкопанные ямки форму держали, заливал воду в ямки - все уходило быстро в беленьком песочке буквально за минуту, в рыжем песке где-то за 30 минут, грунт в комок сжимался но в целом это был не плотный комок.

По итогу решил сделать геологию.
welaribo вне форума Ответить с цитированием
Сказал cпасибо:
Старый 13.03.2021, 00:25   #8 или 327989
welaribo
Я тут живу!
Регистрация: 13.09.2015
Адрес: Минск
Сообщений: 1,253
Репутация: 11
По умолчанию

ТЗ на геологию включало в себя 5 скважин, весь процесс занял около 4 часов. Делали статическое зондирование (смогли в 3х скважинах только сделать, в 2х других во что-то упирались) и бурили скважины на 6 метров.
welaribo вне форума Ответить с цитированием
Сказали спасибо: 2
Старый 13.03.2021, 00:41   #9 или 327990
welaribo
Я тут живу!
Регистрация: 13.09.2015
Адрес: Минск
Сообщений: 1,253
Репутация: 11
По умолчанию

По результатам геологии на участке песок мелкий прочный, песок средний средней прочности, песок крупный средней прочности на разных глубинах в разных скважинах, в одной из скважин обнаружен неродной грунт на глубину до 1.5м, грунтовых вод нет, в заключении написано частично линзообразное строение основания.


Проектировщик собрали нагрузки по дому и по результатам геологии предложил свайно-ростверковый фундамент. Я хотел еще ленту рассмотреть, но архитектор и проектировщик убеждали на свайно-ростверковый. Обзвонил исполнителей с абстрактным вопросом лента vs свайно-ростверковый, в целом по ответам пришел к выводу что лента будет дороже наемным трудом на ~30%. Согласился на свайно-ростверковый фундамент.

Последний раз редактировалось welaribo; 13.03.2021 в 00:51.
welaribo вне форума Ответить с цитированием
Сказали спасибо: 3
Старый 13.03.2021, 00:55   #10 или 327991
welaribo
Я тут живу!
Регистрация: 13.09.2015
Адрес: Минск
Сообщений: 1,253
Репутация: 11
По умолчанию

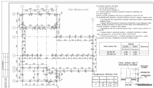
Сваи будут по 2м глубиной, всего 64шт.
welaribo вне форума Ответить с цитированием
Сказали спасибо: 3
Ответ
Поделись ссылкой на эту тему:


Похожие темы
Тема Автор Раздел Ответов Последнее сообщение
Стройка IT_Prof'ыча IT_Prof Моя стройка! 546 20.07.2021 22:53
Стройка от Икс Икс Моя стройка! 111 19.05.2015 10:02
Стройка Coolnick Coolnick Моя стройка! 82 01.10.2014 15:15
Стройка Тигры Tiger Конкурс "Строительство дома: мечты и реальность!" 3 01.10.2012 10:47

Ваши права в разделе
Вы не можете создавать новые темы
Вы не можете отвечать в темах
Вы не можете прикреплять вложения
Вы не можете редактировать свои сообщения

BB коды Вкл.
Смайлы Вкл.
[IMG] код Вкл.
HTML код Выкл.

Быстрый переход

Стройка welaribo Рейтинг:4.50 из 5 на основе 22 оценок.
Дом СоветовЪ, Беларусь, Минск
Старт:
Старт:
Старт:


Здесь присутствуют: 20 (пользователей: 0 , гостей: 20)
 


Текущее время: 15:48. Часовой пояс GMT +3.


Powered by vBulletin® Version 3.8.8
Copyright ©2000 - 2026, vBulletin Solutions, Inc. Перевод: zCarot
Webmaster: OldEr
Реклама у нас
При публикации материалов с нашего сайта гиперссылка на Дом СоветовЪ обязательна