выберите цвет:
Всё о строительстве, отделке и ремонте домов и квартир. Форум, блоги, чат. Дом СоветовЪ. Строим вместе!
Вернуться   > >

Ответ
Опции темы Рейтинг: Рейтинг темы: 5.00, голосов 5 Опции просмотра
Старый 08.01.2015, 14:02   #1 или 211708
STASIKAN
Пионэр
 
Аватар для STASIKAN
Регистрация: 28.05.2011
Адрес: Полигон 736/6
Сообщений: 102
Репутация: 11
По умолчанию Электричество в доме своими руками

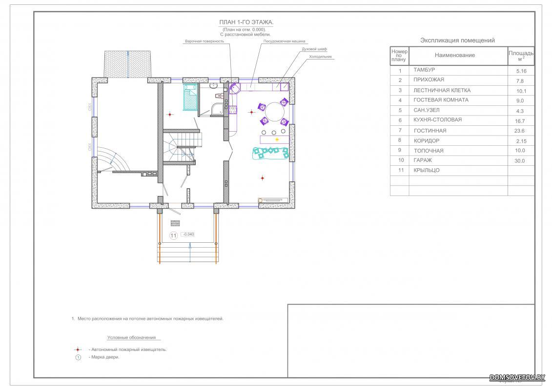
Вот решил вынести на обозрение форума. Кому-то будет интересно, да и мне трезвый взгляд не помешает.
Перед тем как начать монтаж нужно разобраться, что и где необходимо установить.
Начну с расстановки оборудования. Далее пойдут все остальные разделы проекта.
Критикуйте буду очень рад. Что принято за основу, в цоколе стоит один ЩР на весь дом, отдельно только топочная и гараж. Трехфазный потребитель один - варочная поверхность. Группы, коробки и трассировка пока в разработке, будет все зависеть от свободного времени, пока завал и его очень мало.
Проводка будет разводиться по потолку с опусками в штробах, по мансардному этажу потребители будут подниматься с первого этажа по стене в штробе. Дабы не тягать провода в трубе по стропилке.
Компановка электрооборудования





Приблизительная расстановка мебели, пока в разработке, но в целом сильно не поменяется.



---------- Сообщение добавлено в 12:55 ---------- Предыдущее было в 12:52 ----------

Можно разобраться или плохо видно?

---------- Сообщение добавлено в 13:02 ---------- Предыдущее было в 12:55 ----------

Блин перепробывал все загрузки, на форуме режут качество, что делать?
STASIKAN вне форума Ответить с цитированием
Сказали спасибо: 2
21.12.2012
Спонсор
Я здесь родился!
 
Регистрация
Чтобы убрать этот блок - надо зарегистрироваться!
Здесь может быть ваша реклама!
Старый 08.01.2015, 15:12   #2 или 211726
purler
Я тут живу!
Регистрация: 20.05.2011
Сообщений: 2,760
Репутация: 21
По умолчанию

Чертежи вполне читаемые. Поделюсь своим опытом.
Разводить по плитам потолка и потом сверлить плиту вверх и штробить до розетки довольно удобно получилось. Если потом будет гипсокартон на потолке то лучшего варианта разводки я не придумал.

Посоветовал бы подумать где еще Ящик с автоматами повесить. Все тянуть из подвала будет накладно и в один ящик придет очень много проводов.
Если поделить все на пару ящиков и в них кинуть 5-ти жильный кабель толстый из вводного ящика, то потом будет полная свобода на какую фазу что повесить.
От ящика на этаже куда ближе будет тянуть кабель до розеток и лампочек чем из подвала.
purler вне форума Ответить с цитированием
Старый 08.01.2015, 15:33   #3 или 211731
STASIKAN
Пионэр
 
Аватар для STASIKAN
Регистрация: 28.05.2011
Адрес: Полигон 736/6
Сообщений: 102
Репутация: 11
По умолчанию

Есть пару моментов, которые не проработаны.
1. Потребители топочной - не понятны как и расположение розеточных групп.
2. Освещение мансарды осуществляется не с потолочных светильников, а со стеновых, может мало точек для светильников.
3. Самое главное, расположение вводного шкафа ШР в подвале (допустимо ли в этом месте) т.к по ткп нельзя под "мокрыми" комнатами, он вроде под коридором.

Бить на ящики не вижу смысла, т.к самое большое кол-во потребителей это кухня - а это самое оптимальное место, второй этаж - там мало групп (линий) будет. Знал бы потребителей топочной - не делал бы щиток. Как и в гараже - еще не понятно, ворота, точильный сверлильный станок, сварочник - нет определенности.

---------- Сообщение добавлено в 14:33 ---------- Предыдущее было в 14:27 ----------

Да еще в подсобном помещении №3 в подвале где щиток планируется постирочная - пытаюсь разобраться насколько это правомочно.
STASIKAN вне форума Ответить с цитированием
Старый 08.01.2015, 16:16   #4 или 211743
purler
Я тут живу!
Регистрация: 20.05.2011
Сообщений: 2,760
Репутация: 21
По умолчанию

STASIKAN, на мой взгляд (не профи) - слишком загоняетесь по некоторым моментам. Думаете кто-то будет дотошно ходить и сверять что вы сделали с ТКП?
Там где вода и что-то капает там лучше электрику не ставить и рядом с трубами не вести. Но в комнате со стиралкой врядли будет много воды. Стиралка через УЗО полюбому.

А по поводу дополнительного ящика - подумайте. Посчитайте откуда сколько кабелей пойдет. Чем городить разветвительных коробок мне кажется куда надежней поставить ящик ближе к розеткам и с него вывести линии на этаж. На одну линию слишком много розеток вешать плохо. Свет в идеале вести отдельной линией и через свой автомат. Хотя, конечно, можно 1-2 автомата на этаж поставить и все на том.
purler вне форума Ответить с цитированием
Старый 08.01.2015, 16:34   #5 или 211749
Korvet068
Не раз долбаный нераздолбаный электрик
 
Аватар для Korvet068
Регистрация: 26.09.2011
Адрес: Минск, Молодечно
Сообщений: 5,966
Репутация: 28
Знак отличника: За отличие! 
По умолчанию

Опять название не соответствует теме обсуждения! Электричество своими руками - это о том как её получить электроэнергию, а не как подвести.
Korvet068 вне форума Ответить с цитированием
Сказал cпасибо:
Старый 08.01.2015, 16:41   #6 или 211754
nice911
Кому няка
Регистрация: 12.08.2013
Сообщений: 333
Репутация: 12
По умолчанию

Из того, что бросилось в глаза:

1 этаж - кухня:
1) Лампочка над теликом не к чему - будет отражаться. Либо подумайте об раздельном вкл/выключении света блоками.
2) Подумайте над: измельчитель, вытяжка, подсветка столешницы, микроволновка встроенная - нужны ли вам?
3) Если плита газовая, то все равно нужен вывод под электроподжиг
4) Лучше предусмотреть также все сетевые розетки. Например, для телика.
5) Опять же для телика 1-й точки мало, а как же тюнер...и всякая прочая дребедень, которая может подключаться.

1 этаж - маленькая жилая комната:
1) Подумайте над бра возле кровати, тумбочка и т.п., как следствие розетка под зарядку и прочее
2) Верхний свет - прямо в глаз тому, кто лежит на кровати
3) Сетевая розетка?
nice911 вне форума Ответить с цитированием
Сказал cпасибо:
Старый 08.01.2015, 22:27   #7 или 211798
STASIKAN
Пионэр
 
Аватар для STASIKAN
Регистрация: 28.05.2011
Адрес: Полигон 736/6
Сообщений: 102
Репутация: 11
По умолчанию

nice911 спасибо, учту.
Что касается розеток под телек - там их три, над розеткой буковки стоят, это кол-во штук.
Проект по слаботочке - будет отдельный. Сетевая розетка - не знаю на сколько сейчас актуальна, вай-фай закроет все проблемы или я что-то не догоняю.
По видеонаблюдению - отдельный проект, тут еще куча вопросов. Здесь рассматриваем только электрику.


Korvet068 может и перемудрил с названием, имелось ввиду своими руками от проектирования, до монтажа и сдачи...как-то так. Если данная тема избита уже на форуме - могу прикрыть, мне не сложно.

Сегодня накидал основной щиток, хороший шкаф получается =)))))))))
STASIKAN вне форума Ответить с цитированием
Старый 08.01.2015, 23:18   #8 или 211810
майкл
Я тут живу!
Регистрация: 22.07.2011
Сообщений: 1,257
Репутация: 22
За советы: За дельные и своевременные советы 
По умолчанию

Освещение в спальных комнатах - лучше вывести управление еще и возле прикроватных тумбочек, а не только возле входа.
Освещение в гараже при входе из дома - что за проходной стоит, чем он управляет?
Освещение кухни-столовой, так понимаю, пока приблизительное? - я бы подумал как по-другому светильники расположить.
Освещение лестницы можно вывести на датчик движения, который монтируется в подрозетник и сейчас популярно подсвечивать непосредственно ступени либо лентой светодирдной, либо светильниками, для того специально предназначенными - очень красиво получается
В котельной надо либо линию на щиток (будущий) вывести, от которого в дальнейшем прокладываются питающие кабели непосредственно к уже смонтированным потребителям открыто, либо пытаться хоть как-то решить вопрос по расположению оборудования и уже с получившимся планом делать разводку электрики.
майкл вне форума Ответить с цитированием
Старый 09.01.2015, 08:38   #9 или 211853
STASIKAN
Пионэр
 
Аватар для STASIKAN
Регистрация: 28.05.2011
Адрес: Полигон 736/6
Сообщений: 102
Репутация: 11
По умолчанию

Спасибо за помощь, уже будет чем на выходных заняться =)
Спальни - буду думать, хорошее замечание.
Освещение в гараже (на въезде), суть в том, чтоб включать освещение дистанционно, с машины вместе с воротами, схема исполнения либо Ноолайт (РБ) либо китай и те и те вроде работают. Такая же картина с включением подсветки дома и адресной таблички. Еще вопрос по мощности прожектора, не малова-то 10Вт. С другой стороны этого хватит, чтоб в кромешной темноте смогли быстрее найти дом гости, скорая и т.д...
1-й вариант
http://www.noo.com.by/nabor-1-PU212-1-SN111-200.html
http://www.noo.com.by/pult-brelok-pn212-1.html
2-й вариант, китайский набор + обычный проходной выключатель, на случай вкл/откл света без брелка
http://ru.aliexpress.com/item/AC-220...053738562.html
Да кухня требует проработки, нужно еще проектор повесить, для жены
Лестница, можно ссылку на датчики если не сложно, гляну.
Вот есть ссылка у AlekseyZ решение похожее. Один нюанс, есть смысл запариваться по напряжению питания, т.е в идеале лучше 12В - гореть светильники не часто будут, но тогда уйдут датчики движения, если делать 220 - то схемы на 220 - стремноватые, хотя и получили широкое распространение.
http://www.domsovetov.by/showthread.php?t=5515&page=2
В котельно щиток и висит, все верно я так и думал. Там сложно получается, ввод воды под окном и там же проходка в цоколь для разводки труб, а дымовая труба с другой стороны. Нужен проект на отопление и водоснабжение, пока не нашел специалистов, может сориентируете по проектанту и приблизительной цене вопроса.

Да, никто не заметил....ночью как-то мысль пришла, звонка то нет, здесь то я его добавлю, а что делать с колиткой, коей еще нет, а кабель закопан. От щитка кинуть проще к ней кабель, а как передать в дом звонок....блин...вот и первый косяк. И как следствие потянет лишнюю работу...
STASIKAN вне форума Ответить с цитированием
Старый 09.01.2015, 11:16   #10 или 211902
STASIKAN
Пионэр
 
Аватар для STASIKAN
Регистрация: 28.05.2011
Адрес: Полигон 736/6
Сообщений: 102
Репутация: 11
По умолчанию

Датчики движения на лестничном марше
Да есть в подрозетнике, нужно только определиться с расположением, чтоб ложно не срабатывали каждый раз.
http://ksk.by/ielektrotovari/datchik...iya-crl05.html
http://ksk.by/ielektrotovari/datchik...200w-ip20.html
Два датчика хватит на лестничный марш этажа, один для поъема, второй для спуска.
STASIKAN вне форума Ответить с цитированием
Ответ
Поделись ссылкой на эту тему:


Похожие темы
Тема Автор Раздел Ответов Последнее сообщение
Вентфасад своими руками Felix Наружная отделка 95 03.03.2021 13:42
Пруд своими руками LexXx Водоёмы и бассейны 78 14.06.2018 09:42
Камин своими руками Славка Печи и камины 188 10.01.2015 22:55
Перемычка своими руками polyzadumchivy Фундамент 5 08.05.2012 00:43
Бур с расширением своими руками Saburoff Оборудование и инструменты 62 06.04.2012 17:01

Ваши права в разделе
Вы не можете создавать новые темы
Вы не можете отвечать в темах
Вы не можете прикреплять вложения
Вы не можете редактировать свои сообщения

BB коды Вкл.
Смайлы Вкл.
[IMG] код Вкл.
HTML код Выкл.

Быстрый переход

Электричество в доме своими руками Рейтинг:5.00 из 5 на основе 5 оценок.
Дом СоветовЪ, Беларусь, Минск
Старт:
Старт:
Старт:


Здесь присутствуют: 1 (пользователей: 0 , гостей: 1)
 


Текущее время: 23:38. Часовой пояс GMT +3.


Powered by vBulletin® Version 3.8.8
Copyright ©2000 - 2025, vBulletin Solutions, Inc. Перевод: zCarot
Webmaster: OldEr
Реклама у нас
При публикации материалов с нашего сайта гиперссылка на Дом СоветовЪ обязательна