выберите цвет:
Всё о строительстве, отделке и ремонте домов и квартир. Форум, блоги, чат. Дом СоветовЪ. Строим вместе!
Вернуться   > >

Важная информация

Проекты и проектирование Обсуждаем проекты домов, дач, бань. Плюсы и минусы типовых и индивидуальных проектов.

Ответ
Опции темы Оценить тему Опции просмотра
Старый 16.07.2014, 13:48   #131 или 194028
Nick_Shl
Я тут живу!
Регистрация: 20.01.2012
Адрес: Миннеаполис, стройка под Логойском
Сообщений: 1,968
Репутация: 15
По умолчанию

Юра Добриденев, прожект Оффтоп гуамно.

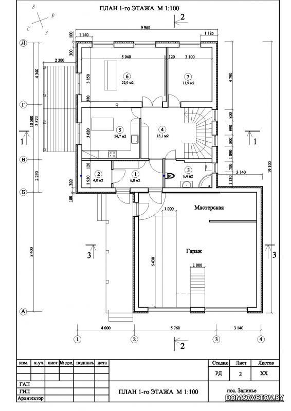
1) Сразу бросается в глаза три стояка: на кухне и два туалета. Если подвала нет - повышаются шансы ремонта с взрыванием пола. А вентиляция? Три стояка на крыше? Впрочем, наверное, на чердаке можно согнать в один.

2) "Углатая" комната без номера - слишком большой в глубину шкаф, изогнутые края - расход материала напольного покрытия(вы же за рациональность ратуете?)

3) Что за комнатка такая 10? Кладовка? Для жилой явно маловата.

4) Зачем вам отапливаемый гараж? Машину ставить все равно туда не будете. Как мастерская - маловат. Хлам складывать? Складывайте в котельную.
А из гаража получится еще две жилых комнаты.

5) У вас только две спальни? "Папа, мама, я" и на пополнение не рассчитано?
Nick_Shl вне форума Ответить с цитированием
21.12.2012
Спонсор
Я здесь родился!
 
Регистрация
Чтобы убрать этот блок - надо зарегистрироваться!
Здесь может быть ваша реклама!
Старый 16.07.2014, 14:39   #132 или 194031
mikola
Я тут живу!
Регистрация: 07.06.2011
Адрес: Ратомка
Сообщений: 1,649
Записей в дневнике: 1
Репутация: 19
По умолчанию

Цитата:
Сообщение от Nick_Shl Посмотреть сообщение
1) Сразу бросается в глаза три стояка: на кухне и два туалета. Если подвала нет - повышаются шансы ремонта с взрыванием пола. А вентиляция? Три стояка на крыше? Впрочем, наверное, на чердаке можно согнать в один.
Три стояка не нужны, на кухне по определению (ну нет там такого разряжения), а санузлы можно объединить одной магистралью.
mikola вне форума Ответить с цитированием
Старый 16.07.2014, 22:35   #133 или 194086
Консультец
Я тут живу!
 
Аватар для Консультец
Регистрация: 16.05.2011
Адрес: Агрогородок!
Сообщений: 2,044
Репутация: 16
Знак отличника: За отличие! 
По умолчанию

Цитата:
Сообщение от Вик Посмотреть сообщение
А тут BY будет...
Уже сколько лет в офисе вся двигается тип-топ. Ручки должны быть не под член заточены.
Консультец вне форума Ответить с цитированием
Старый 16.07.2014, 23:48   #134 или 194090
Юра Добриденев
Я тут живу!
 
Аватар для Юра Добриденев
Регистрация: 19.08.2012
Адрес: Гомель
Сообщений: 6,547
Репутация: 22
По умолчанию

Цитата:
Сообщение от Nick_Shl Посмотреть сообщение
Юра Добриденев, прожект Оффтоп гуамно.

1) Сразу бросается в глаза три стояка: на кухне и два туалета. Если подвала нет - повышаются шансы ремонта с взрыванием пола. А вентиляция? Три стояка на крыше? Впрочем, наверное, на чердаке можно согнать в один.

2) "Углатая" комната без номера - слишком большой в глубину шкаф, изогнутые края - расход материала напольного покрытия(вы же за рациональность ратуете?)

3) Что за комнатка такая 10? Кладовка? Для жилой явно маловата.

4) Зачем вам отапливаемый гараж? Машину ставить все равно туда не будете. Как мастерская - маловат. Хлам складывать? Складывайте в котельную.
А из гаража получится еще две жилых комнаты.

5) У вас только две спальни? "Папа, мама, я" и на пополнение не рассчитано?
1) У меня подполье под плитами, в местах стояков и на пути основной трубы стою немного согнувшись. До одного места мне ваши проблемы. Могу втыкать дополнительно что угодно и соединять под плитами, вдобавок. И даже еще не планировал где точно будут стоять санприборы, где поставлю, там дырку пробью. Санузлы объеденены одной магистралью под существующие в природе углы. На общем плане проброшена линия, не удалил. До первого стыка с гаражом (там основной узел) смонтировано еще до укладки плит. Канализация уже работает, принимает дождевые воды попадающие в подполье, у меня там все уклоны в одну точку и все покрыто герметично, т.е. открытого грунта нет, как и ни одного продуха.
Вентиляция будет активной, т.к. участок в городе. Конкретно схему еще не продумывал, но даже если выводить 3 стояка, это лучше чем иметь санузлы не там где хочешь.

2) это гардеробная в спальне, в чем проблема её большой глубины ? Про какой расход материала вы говорите не понимаю. Если попытаетесь нарисовать в этом узле другую планировку, то поймете в чем рациональность.

3) Это спальня на одного человека около 10м2, со времени, когда придет пора расселять детей и до того как ребенок поедет учиться, в другое время это будет кладовая - гардеробная. Только не говорите что этого не достаточно на одного человека. В 12м2 живут по двое 90% населения.

4)Гараж с возможностью отопления, т.е. быстрого нагрева. http://www.teplomash.ru/?p=catalog&group_id=13&id=30
Зимой одна машина будет постоянно там, но без отопления (думаю будет около нуля). Если нужно поработать - врубается водяная пушка, предварительно с неё снимается блок утеплителя, сама пушка находится в котельной и прилегает к утеплителю перегородки .
В гараже будет не только машина, но и мотоцикл. Всего: машины 2+лодка с мотором + мотоцикл, т.е. периодически что нибудь из этого нужно будет ковырять, размеры позволяют это сделать с достаточным комфортом, проверено. На яму зайдет мерседес спринтер.
В котельной будет маленькая мастерская, место для снастей и снаряжения и мой комп, ну и что еще влезет. Может маленькую ванночку поставлю для рыбы, чтобы в большой не гадить, там почти 16м2
Хлам будет в сарае в дальнем углу участка, за беседкой.
5)спален достаточно для 3х детей, но третий, если и будет, то первому останется жить в доме максимум пяток лет, т.к. в обозримом будущем третий не планируется.

Так в чем гамно ?

---------- Сообщение добавлено в 22:48 ---------- Предыдущее было в 22:27 ----------

Цитата:
Сообщение от Консультец Посмотреть сообщение
Уже сколько лет в офисе вся двигается тип-топ. Ручки должны быть не под член заточены.
У вас какая в офисе, неужели реально нашего производства ? А то шведская сильно дорогая (хоть и высокого качества), а аналогов, пока, найти не могу.

Последний раз редактировалось Юра Добриденев; 17.07.2014 в 00:26.
Юра Добриденев вне форума Ответить с цитированием
Старый 17.07.2014, 08:49   #135 или 194099
Консультец
Я тут живу!
 
Аватар для Консультец
Регистрация: 16.05.2011
Адрес: Агрогородок!
Сообщений: 2,044
Репутация: 16
Знак отличника: За отличие! 
По умолчанию

Цитата:
Сообщение от Юра Добриденев Посмотреть сообщение
У вас какая в офисе, неужели реально нашего производства ? А то шведская сильно дорогая (хоть и высокого качества), а аналогов, пока, найти не могу.
Импортная. И у нас не гармошка, а секционная. Каждая секция двигается самостоятельно по направляющей в потолке и закрепляется враспор специальным упорами. Друг с другом соединяются очень плотно. В принципе, конструкция достаточно примитивна, и ломаться там нечему.

---------- Сообщение добавлено в 07:49 ---------- Предыдущее было в 07:46 ----------

Цитата:
Сообщение от Nick_Shl Посмотреть сообщение
Юра Добриденев, прожект Оффтоп гуамно.

1) Сразу бросается в глаза три стояка: на кухне и два туалета. Если подвала нет - повышаются шансы ремонта с взрыванием пола. А вентиляция? Три стояка на крыше? Впрочем, наверное, на чердаке можно согнать в один.
Да-да! Ядерным оружием взрывать!
Консультец вне форума Ответить с цитированием
Старый 17.07.2014, 10:35   #136 или 194107
Юра Добриденев
Я тут живу!
 
Аватар для Юра Добриденев
Регистрация: 19.08.2012
Адрес: Гомель
Сообщений: 6,547
Репутация: 22
По умолчанию

Такая ?

Мне показалось что она еще дороже, но попробую узнать цену.
Юра Добриденев вне форума Ответить с цитированием
Старый 17.07.2014, 12:19   #137 или 194115
chingachgoock
Член Совета
 
Аватар для chingachgoock
Регистрация: 23.05.2011
Адрес: Минск
Сообщений: 545
Записей в дневнике: 3
Репутация: 16
По умолчанию

Юра Добриденев, И все таки я вас не понимаю. До этого вы рассуждали об отсутствии комфорта и уюта в опенспейсе, а тут собираетесь офисную перегородку посреди комнаты ставить и гостей водить не через вход, а через двор, и входить в дом через террасу.

Я прекрасно понимаю, что ваш проект это продукт компромисса - но извините лишать дома базовых функций (разделение на приватную и общественную зоны) - привнесение в дом офисности - я считаю, не компромисс это, а переговоры с террористами. Я в похожей ситуации осознал, что комфортный одноэтажник ну ни как не получается и придется строить 2 этажа. Вы же привели свой вариант, который назвали компромиссным (а это есть - соглашение между сторонами на основе взаимных уступок). С моей точки уступок с вашей стороны гораздо больше, чем со стороны проекта/участка - вы здесь, с моей точки зрения, абсолютно проиграли. Так вот вы приводите свой вариант и агитируете всех следовать похожим путем. Для вас это идеал - для меня - это на грани неприемлимого (тогда уж лучше квартиру купить).

Последний раз редактировалось chingachgoock; 17.07.2014 в 13:09.
chingachgoock вне форума Ответить с цитированием
Старый 17.07.2014, 23:06   #138 или 194163
Юра Добриденев
Я тут живу!
 
Аватар для Юра Добриденев
Регистрация: 19.08.2012
Адрес: Гомель
Сообщений: 6,547
Репутация: 22
По умолчанию

ну ерунды понаписывали, честное слово. Гости будут ходить как положено, через главный вход. Зоны, как раз, разделены капитальной стеной. Если бы они былы по разную сторону от входа, было бы, возможно, визуально более разделённо, но не более того, т.к. шуму из активных зон абсолютно фиолетово с какой стороны входа находятся спальни. Компромис, в данном случае заключается в том, что активная зона совмещена с внутренним двором, считаю это приорететным.
Вокруг дома водить, если есть желание, можно левых редких "гостей", если кого-то они напрягают или если в спальнях нету дверей (может у кого-то и такое желание есть). Террасы у меня не будет, мне нужен свет в помещениях.
Какая разница как назвать перегородку ? Офисная она или домашняя ? Где на ней написано ? В первую очередь это раздвижная стена. Выбор отделки очень большой, все зависит только от фантазии заказчика. По вашему, обои это вершина дизайна ?
От двухэтажных домов лучше отходить при любой возможности (это мнение большинства тех кто пожил в них и в силах самому себе в этом признаться), если возможности нет, то почему бы и не двухэтажный ? А на сколько шагов от входа дверь спальни, не имеет особого значения, если не получается спальни затолкнуть подальше, то в этом нет ничего страшного, 3-4 лишних метра погоды никакой не сделают.
Не знаю как делали вы, но я проект не выбирал, а делал конкретно под свой участок, учтя все пожелания начиная с приорететных. Этот дом на этом участке нельзя было сделать по другому, я его не придумывал, он получился в результате объеденения всех пожеланий. Например, гараж именно в этой части дома с входами в тамбур и котельную, более вытянутая в глубину форма, т.к. нужна большая стоянка с навесом справа от дома для машин и прицепа с лодкой), зал и кухня рядом и со стороны заднего двора. Котельная большая примыкающая к кухне и гаражу одновременно. Спальни именно с этой стороны, с левой стороны ни одного жилого помещения (это не только желание, но и требование норм). Капитальная стена между зонами. Минимум окон со стороны главного входа (юг), то окно что есть сделать заставили. Встроенные шкафы в 2х спальнях. Это то что вспомнил сходу, есть ещё.
Ну а теперь предложите мне что нибудь удовлетворяющее всему этому.
Про квартиру вы совсем глупость сморозили, уж извините.

---------- Сообщение добавлено в 22:06 ---------- Предыдущее было в 21:35 ----------

крик души одного человека:
"вы наверняка не представляете ВСЕ трудозатраты в частном доме, а тем более если он двухуровневый.
Это не только Стакан Минералки.
Каждую весну вам придется мыть 15-20 окон...
А принести хотя бы ту же мебель.
А сделать ремонт через N лет захотите. снова перемещения. Всю мебель вниз, всю вверх (новую) и т.п.

И вообще! Кол-во "беготни на "второй" как мы это говорим, вы просто не представляете.
Это не только сходить за чаем и поспать. Это еще все вещи.
Пришел с улицы! (Частный дом, утром копался чистил снег например) греется завтрак, вот бы пойти и позавтракать, а НЕТ! иди НАВЕРХ переодевайся с улицы, в комнату, потом иди вниз. А тут бах, забыл наверху что нибудь, мобилку, а надо позвонитьь. Иди наверх. За телефоном. Потом снова переодеться, пойти "в город". Ага. иди наверх.
Пьешь в трусах утром чай, смотришь в окно идет по двору сосед (это нормально в частных домах что заходят друг к другу без стука в калитку).
Беги наверх одевайся в комнате.
Западенцы не дураки. И не потому что турбизнес. Это историческая обоснованность хозяйской жизни.. Все болгары строят длиннючие одноэтажки (пристраивают по мере расширения семьи как поезд) да, не очень эстетично, но .. В конце концов безопасность! да! спишь то наверху.... а что "творится" на первом? а вдруг не дай бог пожар, или что, и выскочить уже прыгать либо через шторы спускаться. У меня был случай. Закрыл дверь на втором этаже, а ручка сломалась. Дома никого. Вылазил со второго.
Короче. Я даже не могу описать всех ситуаций, начиная от приноса телевизоров и диванов и заканчивая "чайными ложечками".
А вспомнил. Самое крутое, когда забудешь наверху "таблетку" которую надо выпить когда болеешь... или градусник. ну в общем плохо, температура. Еле спустился на кухню. Ой, а таблетки забыл.. надо возвращаться. Мы 20 лет эксплуатируем и чесно от всей души не желаем новым застройщикам этого. Максимум - мансарда, но не для жилых нужд. Ну т.е. в ней какой-то кабинет, комната созерцания звезд, игры в что где когда, эрудит и шахматы, не знаю, комната рисования картин на мольберте, на стенах, на полу или тренажерный зал, в общем что угодно но НЕ СПАЛЬНИ.
Это ужасно сложно в ежедневной практике.
Я просто предостерегаю будущих не живших. Двууровневая планировка ну в принципе сложна для жизни. Частный дом это постоянные перемещения, огород, соседи, комнаты. То что то кому -то надо посмотреть, то еще кто-то позвонит, беги в комнату, в общем... а Вот еще. Вы легли спать, а тут кто-то в калитку!! Беги... вниз.. а, по лестнице,...кто -там... сосед пришел, у него свет пропал, телефон не пашет, просит аккумулятор до утра.. да таких ситуаций МОРЕ- океан!


Просто представьте если вы живете в многоэтажке, что в вашей квартире нет кухни, а кухня внизу у соседа по лестничной клетке (нижнего!)
И вам чтобы туда пойти надо 1) пройти по корридору
2) спуститься по двумаршевуму пролету
3) пройти по корридору
4) попасть на кухню.
да это так. реально. так. плюс стирка, уборка, ношения от стиральной машины вниз-вверх по комнатам.
получается жизнь НЕ внизу. Жизнь в спальнях. В своих! комнатах.
Каждый по углам и все НАВЕРХУ а внизу сбредаются только на борщ.
А потом опять все вверх по углам. Кому уроки поделать, кому в инете побыть, в общем все в своих спальнях.
Не в зале.
так что ... все домочадцы будут потом:
"ааа..я не пойду.. иди ты вниз... мама попросила принести ей книгу рецептов с первого этажа... ты же как сын должен маме помочь... так иди ты. твоя очередь.... Мам! Я его просила, а он не хочет идти!"
в общем это цирк))) сосед в то же время построил очень примитивный но практичный проект. 4 комнаты, три налево, зал по центру, в торце чуть не вся ширина здания, кухня ванна санузлы направо.
По центру огромный двуметровый корридор.
Гости все к нему собирались. НГ, праздники.

Все "готовки", наполеоны принесут, "не надо скакать как у вас по этажам", вот мы все тут, собраны! тут же дети под присмотром играют в комнатах, и в огроменном корридоре носятся)
отопления реально МЕНЬШЕ.
И дом стоит меньше!! Значительно!!
А мансарду он не делал потому что - ну не нужной оказалась. Застеклил чтоб ветер не гулял, лестницу провел на нее и туда не ходил. Мы говорим, ну как хотя бы склад ее используй, как сарай, жалко ведь, трубы туда сложи, уголки, а он- та зачем мне туда "тягать" шмотье" - смысл, "тяжело" ведь поднимать. При этом он занимался паурлифтингом!)))) спортсмен, "качок")))) и каратист)))) я говорит лучше вот гараж построю и туда сложу.
Никому площадь в "космосе" второго этажа не нужна.
Вот увидите.
Я рассматриваю для себя максимум - аварийная спальн-две для приехавших. Но не для себя и не для своих!!

И самое, что хотелось добавить. Я не критикан. Я просто прожил "и сам строил" с 14 лет с отцом дом, очень похожий на ваш по габаритам. 220 м2 Как вы правильно заметили - дети уехали. я уехал в 1994 году. ))) и вот - они с матерью там вдвоем. в той громадине.

Но я точно помню - мы вышли на уровень - окна, внутренняя штукатурка, а сосед, начавший рядом с нами скромный одноэтажник уже постелил "все ковры" "ВЕЗДЕ" и уже покупал новую "кухню" , диваны и т.п.
У нас вся мебель осталась после выезда с квартиры, а ковров вообще не было.

у него 7 окон в доме, у нас 16!!!, не считая входной группы.Мама каждый год это вспоминает, как "соседке" меньше мыть!
он "топит" в 2 раза меньше газа, мы же "выкидываем все в трубу"

Мама до сих пор (строили 20 лет назад!!!) вселились в 1989-м
до сих пор!!! ругает "батю" - за то что не слушал соседей.. и не переделал.

Компактность, обслуживание...
продуманность в динамике.. когда что происходит, где вы что делаете...
Именно это я нахожу в польских - норвежских проектах..
Маленькие спальни - в этом то же плюс... ведь маленькая спальня будет теплой - частный дом, всякое бывает. было что переделывали котел 3 раза.!!!!
сначал был на жидком топливе. (солярка)
потом поставили КЧМ на уголь
потом выкинули, провели газ, поставили на газе...
В общем удачи, но пока вы только вышли на 0, есть время за гораздо меньшие средства, перепрофилировать, переиначить то что нарисовано.
может это и даст в будущем эффект.

Поверьте - нам за 20 лет не было удобно в 2-этажке. Мы устали, от стройки, от отделки, в то время как соседи, все позаканчивали и довольтсвовались малым.

2 -этажная квартира или даже пусть 3-уровневая и 2-этажный дом, это разные вещи. с Многоуровневым домом ты один на один.... во всех отношениях его эксплуатации. опять же та же крыша требует ухода.
эх.. что говорить.."

Последний раз редактировалось Юра Добриденев; 17.07.2014 в 23:00.
Юра Добриденев вне форума Ответить с цитированием
Старый 17.07.2014, 23:52   #139 или 194172
wilson
Я тут живу!
Регистрация: 28.08.2011
Сообщений: 2,810
Репутация: 26
Золотые часы: За хронометраж событий 
По умолчанию

Много бреда про 2этажный дом...
wilson вне форума Ответить с цитированием
Сказали спасибо: 4
Старый 18.07.2014, 00:06   #140 или 194174
Orange
Пионэр
Регистрация: 05.06.2013
Сообщений: 115
Репутация: 10
По умолчанию

Юра Добриденев, да что Вы всё оправдываетесь? Ну слепили из того, что было, так слепили. Если Вас и семью устраивает - отлично. Мнение других - это мнение ДРУГИХ. Вам же жить. Просто с пеной у рта не навязывайте это своё "рациональное". Ну нет единомышленников и что? Ваш дом и точка зрения и навязчивое настояние на ней - ужасны, я так думаю, но что Вам от этого, холодно или жарко? Так нет, бьётесь. Такой срач тут развели ...
Orange вне форума Ответить с цитированием
Ответ
Поделись ссылкой на эту тему:

Опции темы
Опции просмотра Оценка этой темы
Оценка этой темы:

Похожие темы
Тема Автор Раздел Ответов Последнее сообщение
Покритикуйте проект дома Z177 Neb Проекты и проектирование 33 12.05.2014 20:14
Покритикуйте проект двухэтажного дома IT_Prof Проекты и проектирование 2 23.03.2014 22:13
Покритикуйте проект плиз pblzhik66 Проекты и проектирование 264 23.11.2013 17:41
Покритикуйте проект дома 180м2 DEAR_FRIEND Проекты и проектирование 38 06.11.2013 11:17
покритикуйте проект rus Проекты и проектирование 59 14.03.2013 16:42

Ваши права в разделе
Вы не можете создавать новые темы
Вы не можете отвечать в темах
Вы не можете прикреплять вложения
Вы не можете редактировать свои сообщения

BB коды Вкл.
Смайлы Вкл.
[IMG] код Вкл.
HTML код Выкл.

Быстрый переход

Покритикуйте проект дома Oskar Рейтинг: из 5 на основе 0 оценок.
Дом СоветовЪ, Беларусь, Минск
Старт:
Старт:
Старт:


Здесь присутствуют: 1 (пользователей: 0 , гостей: 1)
 


Текущее время: 21:00. Часовой пояс GMT +3.


Powered by vBulletin® Version 3.8.8
Copyright ©2000 - 2026, vBulletin Solutions, Inc. Перевод: zCarot
Webmaster: OldEr
Реклама у нас
При публикации материалов с нашего сайта гиперссылка на Дом СоветовЪ обязательна