выберите цвет:
Всё о строительстве, отделке и ремонте домов и квартир. Форум, блоги, чат. Дом СоветовЪ. Строим вместе!
Вернуться   > >

Важная информация

Проекты и проектирование Обсуждаем проекты домов, дач, бань. Плюсы и минусы типовых и индивидуальных проектов.

Ответ
Опции темы Рейтинг: Рейтинг темы: 5.00, голосов 1 Опции просмотра
Старый 28.09.2014, 10:37   #31 или 200268
настойчивый
Дипутат
Регистрация: 26.01.2012
Сообщений: 444
Репутация: 11
По умолчанию

Цитата:
Сообщение от Юра Добриденев Посмотреть сообщение
А чем плох для тёщи зал, если он непроходной? В квартирах это по умолчанию жилая комната, т.е. спальня. В домах отличный вариант гостевой комнаты. Нафига для этого отдельное помещение держать ?
А дети пусть во дворе играют или в одной из своих спален. Ато для гостей дополнительно, для игровой дополнительно, для сушки белья дополнительно, для праздников тоже отдельно. С такими понятиями нужно газом торговать.
У меня высота чердока в коньке при малом угле будет 3.5 метра, даже не думаю там что-то делать. Только хлам забрасывать.
Вы сколько в доме уже живёте ? У большинства моих соседей стоит вопрос "как отсечь по отоплению второй ненужный этаж". И это газ ещё не по полной стоимости. Появляются там только во время уборки, а у кого внизу спальни нету спят в гостиной.
У нас пятно застройки - 32 участка, 12 очень активно застраиваются - 1-этажный дом только у меня. Большинство - мансардные, у соседа: подвал, этаж, мансарда. участки - начиная от 1,4 га до 2,5 га. Перевести в квадратуру - средний дом 180 -200 кв.м. Разницы нету...Найти 1-этажный дом гораздо сложнее, чем мансардные или 2-этажные даже. С чем связано??? Дом строят один раз и навсегда (второго может и не быть), жить и думать - а вот если бы.....Вполне может еще пару детишек родиться...
Вы по необходимости сможете организовать чердачок - вам высота позволит, но не у всех так
настойчивый вне форума Ответить с цитированием
21.12.2012
Спонсор
Я здесь родился!
 
Регистрация
Чтобы убрать этот блок - надо зарегистрироваться!
Здесь может быть ваша реклама!
Старый 28.09.2014, 11:14   #32 или 200272
no name
Я тут живу!
 
Аватар для no name
Регистрация: 06.05.2011
Адрес: Гомель
Сообщений: 3,756
Записей в дневнике: 4
Рецепты: 3
Репутация: 20
Мы вместе!: За неоценимую помощь в развитии форума 
По умолчанию

настойчивый, нет ничего вечного... понятие навсегда относительное. Спальня родителям, разнополым детям по комнате и одна комната кабинет-гостевая спальня. Играть во дворе и на террассе ))) Лучше два маленьких дома чем три поколения под одной крышей. Еще вариант что разъедуться все дети и будешь куковать один в трех уровнях. Топить на кухне и в санузле. Сколько в Гомеле домов огромных из 90-ых стоит с неосвоенными этажами. И не вижу ничего ужасного гостю переночевать в гостинной один раз. В двушках люди живут, комната детям, комната родителям и престарелая бабушка на кухне. От средств нужно отталкиваться и возможностей в первую очередь.
P.s. У меня сейчас муж смотрит варианты куда и какую лестницу в холле смонтировать ))) поставим тениссный стол в мансарде и гардероб для межсезонных вещей ) хотя еще первый осваивать и осваивать.

Последний раз редактировалось no name; 28.09.2014 в 11:27.
no name вне форума Ответить с цитированием
Старый 28.09.2014, 11:19   #33 или 200274
Юра Добриденев
Я тут живу!
 
Аватар для Юра Добриденев
Регистрация: 19.08.2012
Адрес: Гомель
Сообщений: 6,547
Репутация: 22
По умолчанию

настойчивый, в том и дело что у вас строятся, а у меня уже все живут по 10-15 лет. Тоже все двухэтажники, но все до одного уже поменяли свои взгляды, вплоть до того что некоторые с удовольствием бы поменялись на один этаж в этом же районе.

---------- Сообщение добавлено в 10:19 ---------- Предыдущее было в 10:19 ----------

Цитата:
Сообщение от no name Посмотреть сообщение
Лучше два маленьких дома чем три поколения под одной крышей.
Золотые слова
Юра Добриденев вне форума Ответить с цитированием
Сказал cпасибо:
Старый 28.09.2014, 11:25   #34 или 200276
no name
Я тут живу!
 
Аватар для no name
Регистрация: 06.05.2011
Адрес: Гомель
Сообщений: 3,756
Записей в дневнике: 4
Рецепты: 3
Репутация: 20
Мы вместе!: За неоценимую помощь в развитии форума 
По умолчанию

sergN, покажите план. А если дети уедут полдома сдать можно.
Чтобы не пахло в гараже...
no name вне форума Ответить с цитированием
Старый 28.09.2014, 11:56   #35 или 200278
Вик
Мне всё по.....
 
Аватар для Вик
Регистрация: 04.06.2011
Сообщений: 6,090
Репутация: 29
Знак отличника: За отличие! 
По умолчанию

Три поколения в одном доме (пусть и 3 уровня) это реальная комуналка, личного пространства просто нет.
Вик вне форума Ответить с цитированием
Сказал cпасибо:
Старый 28.09.2014, 12:25   #36 или 200281
bullet_fox
Я тут живу!
 
Аватар для bullet_fox
Регистрация: 12.05.2011
Адрес: Хатежино
Сообщений: 3,228
Репутация: 18
Орден пятиконечной звезды: За постоянную практику полезных советов, основанных на собственном опыте 
По умолчанию

Юра Добриденев, вас тяжело понять. То вам не удобно, что родители друзей целый вечер просидели на кухне, а то предлагаете теще поспать в зале. А пока вы будете гулять, она тоже должна будет сидеть на кухне?
Родителе стареют, потом остается кто-то один и приходится забирать к себе. Тоже в зал?
bullet_fox вне форума Ответить с цитированием
Старый 28.09.2014, 15:22   #37 или 200294
no name
Я тут живу!
 
Аватар для no name
Регистрация: 06.05.2011
Адрес: Гомель
Сообщений: 3,756
Записей в дневнике: 4
Рецепты: 3
Репутация: 20
Мы вместе!: За неоценимую помощь в развитии форума 
По умолчанию

bullet_fox, если забирать конечно отдельная комната д.б. а если просто переночевать можно и в зале.
no name вне форума Ответить с цитированием
Старый 28.09.2014, 16:41   #38 или 200301
sergN
Я тут живу!
 
Аватар для sergN
Регистрация: 17.05.2011
Адрес: минск
Сообщений: 15,735
Записей в дневнике: 5
Репутация: 68
Золотые часы: За хронометраж событий  Орден пятиконечной звезды: За постоянную практику полезных советов, основанных на собственном опыте 
По умолчанию


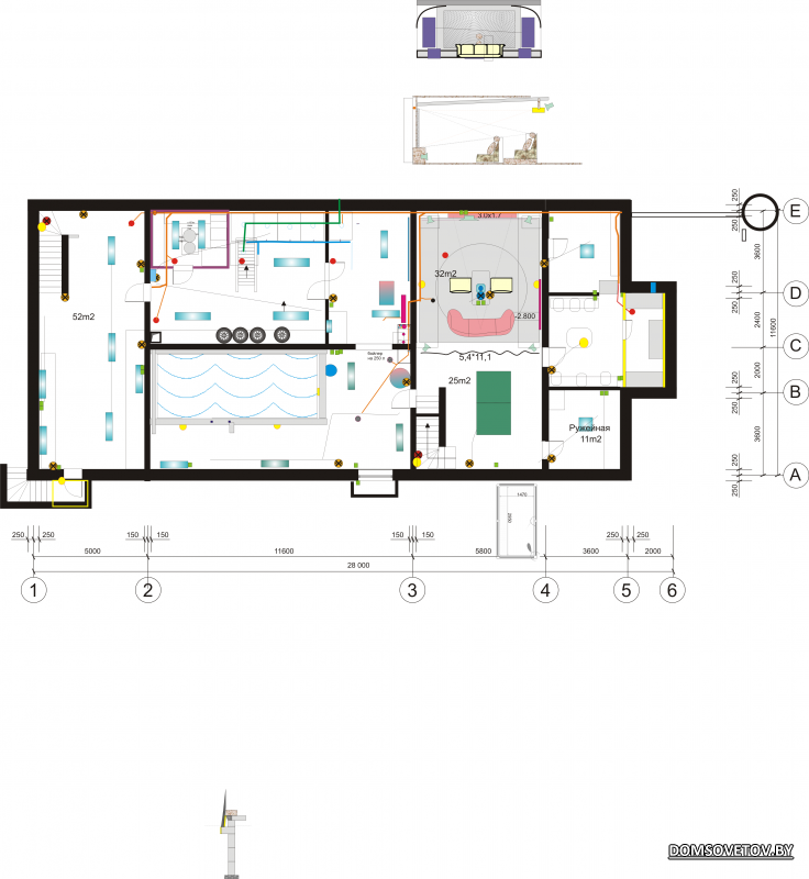
ауски мансарды-тут ещё конь не рисовал..просто есть место. зачем? ХЗ.

второй

первый

цоколь

с дороги не смотрится большим никак.
второй этаж косой с отметки 1.2м . спальня , зал , бассейн имеют 2 света (комая кровля с высотой до потолка 5,5 метров..пока потолка и нету)
sergN вне форума Ответить с цитированием
Сказал cпасибо:
Старый 28.09.2014, 17:00   #39 или 200302
no name
Я тут живу!
 
Аватар для no name
Регистрация: 06.05.2011
Адрес: Гомель
Сообщений: 3,756
Записей в дневнике: 4
Рецепты: 3
Репутация: 20
Мы вместе!: За неоценимую помощь в развитии форума 
По умолчанию

sergN, очень большой )
no name вне форума Ответить с цитированием
Старый 28.09.2014, 17:50   #40 или 200304
satmin1
Окцибрёнок
Регистрация: 11.03.2012
Сообщений: 58
Репутация: 10
По умолчанию

огромное спасибо всем за обсуждениеи интерес к ветке, действтительно интересно услышать разные,порой полярные мнения. Не хотелось бы конечно затевать очередной спор - 1, 2 этажа что лучше, тут я думаю каждый для себя уже давно решил. Жил в Англии в свое время (всего прожил 5 лет) в двухэтажном доме - ничего против не имею. Но при возможности строить 1 или 2 этажа при практически равных затратах - однозначно выберу 1 этаж.Вроде как - крыша и фундамнт больше - а это основные затраты по коробке, но фундамент можно делать легче, проще, тот же ростверк, который под нормальный двухэтажный дом - делать очень и очень надо считать.... Крыша - да, крыша больше почти в 2 раза. Но нет лестницы - а нормальная лестница, качественно сделанная из качественных материалов стоит очень немало денег + места она со всякими прилежащими к ней тамбурами "сжирает" нормально так. Да и дети все-таки немаловажно. Да. выше написали, что проблем с детьми нет, но в это не верю. Так как сам, вполне себе взрослый мужик, в абсолютно трезвом состоянии не раз считал задом ступеньки при спешке.....а уж дети?.... Поэтому несмотря на небольшой недавно купленный участок в 10 соток (благо что он очень удачной и правильной формы 30*34 - почти квадрат), будет 1 этаж, пусть он и займет половину участка (не учитывая всякие отступы) - не беда - газон на 8 соток стрич - совсем не мое хобби)))). Баня влезет, гараж отдельный влезет, ну и небольшая детская площадка - места хватит. Тут уж если не гектар - то 10, 15 без разницы - это имхо. Ну а гектар в 5 км от Минска купить уже не с нашим счастьем)))) ну а при постройке 1 этажного дома - если можно в будущем использовать мансарду для жизни, библиотеки, еще одной спальни - то почему нет - чего добру пропадать.
Большое спасибо Dobrinia за ссылку на интересный польский сайт http://z500.pl/domy/wyszukaj/a7a7463...09e00d794.html - как зашел - понял вот оно. Сразу три проекта того, что мне надо. Наш инет (белорусский, русский) рыл уже месяц - ничего подобного просто не встречал, как ни странно. возможно просто не там рыл, не везло, не те сайты смотрел. Ну или это у нас настолько не востребовано?
выкладываю на обозрение то что нарыл - может быть кому-то в будущем будет нужно что-то подобное - будет проще найти



красным обвел то - что мне по душе - как под меня сделан - два других тоже красавцы, но не подходят по размеру участка, расположению на нем
ссылки на них http://z500.pl/projekt/588/Z195,wygo...-poddasza.html
http://z500.pl/projekt/735/Z200_BG,w...mieszczen.html
http://z500.pl/projekt/723/Z204_bG,w...m-pokojem.html
- возможно для кого то будет полезным кто будет искать нечто похожее, потому как у нас я такого не нашел, что очень странно, ничего необычного нет - но все то что нужно - 4 спальни (идеального для меня размераи формы (квадраты) - ни много, ни мало)+гостинная+кухня расположены раздельно - зонирование +минимум безполезных закутков, нету никаких эркеров, ну не люблю их уж не знаю почему., не сложная крыша. Может быть немного простоват с внешнего вида - но мне очень понравился, жена в восторге. Осталось как-то этот проект подогнать под наши условия, под наши материалы.
Был бы признателен, если бы участники ветки высказали, что не нравитсяв проекте, может быть мы что-то недоглядели в пылу и радости от того что нашли, может быть что-то надо подкорректировать. Из небольшого минуса вижу - маленький тамбур - мало места для шкафов в нем. ну и возможно лишний туалет в кабинете. все остальное - "как по мне шито" )))

---------- Сообщение добавлено в 16:50 ---------- Предыдущее было в 16:44 ----------


справа от дома у меня будет соседский участок, буду придвигать максмально возможно близко к нему ( насколько разрешат в сельсовете) - окно тут только в кабинете - больше нет, поэтому - вид на забор - не критичен. При небольшой площади 129 метров - мне этот проект кажется очень удобным. Как то даже и не вижу что тут можно доработать.....
satmin1 вне форума Ответить с цитированием
Ответ
Поделись ссылкой на эту тему:

Опции темы
Опции просмотра Оценка этой темы
Оценка этой темы:

Похожие темы
Тема Автор Раздел Ответов Последнее сообщение
Проект одноэтажного дома sashal Проекты и проектирование 118 15.07.2014 23:46
помогите дельным советом stasyas Проекты и проектирование 65 14.03.2013 21:57
Планировка одноэтажного дома для большой семьи Balek Проекты и проектирование 34 20.12.2012 22:30
Переоформление недостроя, помогите советом Юра Добриденев Организационные вопросы 2 06.09.2012 18:13
Какие стены выбрать? Помогите пожалуйста!!! stasyas Стены 40 03.04.2012 15:23

Ваши права в разделе
Вы не можете создавать новые темы
Вы не можете отвечать в темах
Вы не можете прикреплять вложения
Вы не можете редактировать свои сообщения

BB коды Вкл.
Смайлы Вкл.
[IMG] код Вкл.
HTML код Выкл.

Быстрый переход

Проект одноэтажного дома 170 кв.м. помогите советом, пожалуйста Рейтинг:5.00 из 5 на основе 1 оценок.
Дом СоветовЪ, Беларусь, Минск
Старт:
Старт:
Старт:


Здесь присутствуют: 1 (пользователей: 0 , гостей: 1)
 


Текущее время: 06:09. Часовой пояс GMT +3.


Powered by vBulletin® Version 3.8.8
Copyright ©2000 - 2026, vBulletin Solutions, Inc. Перевод: zCarot
Webmaster: OldEr
Реклама у нас
При публикации материалов с нашего сайта гиперссылка на Дом СоветовЪ обязательна