выберите цвет:
Всё о строительстве, отделке и ремонте домов и квартир. Форум, блоги, чат. Дом СоветовЪ. Строим вместе!
Вернуться   > >

Моя стройка! Описание своего строительства. Фотоотчёты и хронология.

Ответ
Опции темы Рейтинг: Рейтинг темы: 4.50, голосов 22 Опции просмотра
Старый 13.06.2021, 21:58   #211 или 328633
welaribo
Я тут живу!
Регистрация: 13.09.2015
Адрес: Минск
Сообщений: 1,213
Репутация: 10
По умолчанию

Проводим канализацию, постепенно послойно трамбуем обратную засыпку. С погодой повезло, на выходных хорошие дожди были + проливаем из шланга постоянно. С трамбовкой ходил на выходных, на своем опыте понял что без обильной проливки хорошо утрамбовать невозможно.
welaribo вне форума Ответить с цитированием
21.12.2012
Спонсор
Я здесь родился!
 
Регистрация
Чтобы убрать этот блок - надо зарегистрироваться!
Здесь может быть ваша реклама!
Старый 15.06.2021, 09:56   #212 или 328635
welaribo
Я тут живу!
Регистрация: 13.09.2015
Адрес: Минск
Сообщений: 1,213
Репутация: 10
По умолчанию

Продолжаем прокладывать коммуникации и готовить основание для полов: поверх пролитого/утрамбованного основания засыпается ~5см вторичного щебня/дробленого бетона с трамбовкой, затем сверху опять песком небольшой слой и опять все будет трамбоваться.

welaribo вне форума Ответить с цитированием
Старый 17.06.2021, 08:29   #213 или 328639
Урри
Я тут живу!
Регистрация: 03.05.2015
Адрес: Боровляны
Сообщений: 1,588
Рецепты: 1
Репутация: 15
По умолчанию

Канализация есть, воду еще не заводили? Тоже закапывать надо под фундамент.
Урри вне форума Ответить с цитированием
Старый 17.06.2021, 11:19   #214 или 328642
welaribo
Я тут живу!
Регистрация: 13.09.2015
Адрес: Минск
Сообщений: 1,213
Репутация: 10
По умолчанию

Цитата:
Сообщение от Урри Посмотреть сообщение
Канализация есть, воду еще не заводили? Тоже закапывать надо под фундамент.
Воду завели в топочную, а также закладные под теплотрассу и будущие коммуникации. Всего заложили 2 110 трубы + 4 трубы по 50мм + вода введена уже отдельно. 2 110 трубы закладывали под теплотрассу, но будем пытаться все провести в одной трубе (стандартный размер теплотрассы 140мм, но как мне рассказали утеплитель при вводе в дом частично убирают и все проводят в 110 трубе), остается на будущие коммуникации 110 труба + 4 трубы по 50мм. Надеюсь что хватит на все коммуникации по вводам/выводам.



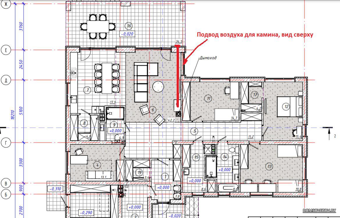
Заложили также приток 110мм под камин, с выводом по террасой, приток поднимается немного по стене и будет на высоте 100-150см от уровня террасы, по стене приток будет в утеплителе, в земле я тоже хотел утеплить но по факту не утеплили.... Надеюсь это не будет проблемой так как пластик аморфное тело и не очень хорошо проводит холод + труба идет ниже ростверка. Внизу под выводом трубы из земли стоит Т-образный тройник для слива конденсата если он будет образовываться.


Окончательно не протрамбовали так как сломалась трамбовка. Нужно забирать уже кирпич, сегодня доставка, будем трамбовать уже когда выведем стены и будет свободно. А пока буду проливать постоянно + бой кирпича, дожди - все это хоть какое, но доп уплотнение.
welaribo вне форума Ответить с цитированием
Сказал cпасибо:
Старый 17.06.2021, 11:50   #215 или 328644
Урри
Я тут живу!
Регистрация: 03.05.2015
Адрес: Боровляны
Сообщений: 1,588
Рецепты: 1
Репутация: 15
По умолчанию

@welaribo,

Все эти вентканалы для погреба, для камина, тут дело такое - мало того что на входе должны быть сетка от живности, так и надо предусмотреть установку обратного клапана и задвижку для закрытия. Т.к. хороший ветер зимой рискует из погреба сделать вам морозильник, и поддув воздуха по каналу подачи к камину - та же петрушка. На наших вентшахтах хороший ветер опрокинет любую гравитационную тягу.
По каминам вообще - можно подавать воздух так, а можно собрать вентканал одновременно для вывода горячих газов и подачи воздуха к камину - есть такие сдвоенные блоки специально сделанные, прикиньте это уже сейчас.
Урри вне форума Ответить с цитированием
Сказал cпасибо:
Старый 17.06.2021, 12:01   #216 или 328646
welaribo
Я тут живу!
Регистрация: 13.09.2015
Адрес: Минск
Сообщений: 1,213
Репутация: 10
По умолчанию

Цитата:
Сообщение от Урри Посмотреть сообщение
Все эти вентканалы для погреба, для камина, тут дело такое - мало того что на входе должны быть сетка от живности, так и надо предусмотреть установку обратного клапана и задвижку для закрытия
Все верно - сетка от живности + обратные клапана обязательны.

Цитата:
Сообщение от Урри Посмотреть сообщение
о каминам вообще - можно подавать воздух так, а можно собрать вентканал одновременно для вывода горячих газов и подачи воздуха к камину - есть такие сдвоенные блоки специально сделанные, прикиньте это уже сейчас.
Я планирую дымоход под камин вести из одинарного блока КББ 400x400 с размером пустоты 320x320 + вставка внутри (металлический сэндвич или керамика). В принципе тут можно использовать и 2х секционный блок 400x300 с размером пустоты 140x220, если сюда конечно вставка подойдет. Уточню этот вопрос, спасибо за совет.
welaribo вне форума Ответить с цитированием
Старый 19.06.2021, 21:44   #217 или 328658
welaribo
Я тут живу!
Регистрация: 13.09.2015
Адрес: Минск
Сообщений: 1,213
Репутация: 10
По умолчанию

Привезли 40 поддонов блока 2NF и 28 поддонов полнотелого кирпича. Привозили машинами завода, по накладным ~80км от завода до меня и обратно, ~177BYN за одну машину. Также уже привезли песок для раствора, цемент, металлическую сетку для армирования, стеклосетку чтобы раствор не проваливался в поры блока, гидроизоляцию для первого ряда. Еще должны подвезти изветь. Ребята отпросились на другой объект на пару дней, в понедельник должны начать кладочные работы.
welaribo вне форума Ответить с цитированием
Сказал cпасибо:
Старый 19.06.2021, 22:00   #218 или 328659
welaribo
Я тут живу!
Регистрация: 13.09.2015
Адрес: Минск
Сообщений: 1,213
Репутация: 10
По умолчанию

Цитата:
Сообщение от welaribo Посмотреть сообщение
в земле я тоже хотел утеплить но по факту не утеплили....
Раскопал сегодня и утеплил трубу подвода воздуха к камину в земле: поверх горизонтальной трубы, которая ниже ростверка, положил 5см лист пеноплекса, вертикальный спуск с улицы в землю тоже утеплил. В след раз утеплю еще подъем трубы к камину.
welaribo вне форума Ответить с цитированием
Старый 20.06.2021, 10:25   #219 или 328660
Урри
Я тут живу!
Регистрация: 03.05.2015
Адрес: Боровляны
Сообщений: 1,588
Рецепты: 1
Репутация: 15
По умолчанию

Можно теплоизоляцию делать в том числе пенофолом - накрутить сколько надо и хомутами пластиковыми поверх стянуть. Просто и эффективно.
Урри вне форума Ответить с цитированием
Сказал cпасибо:
Старый 20.06.2021, 11:17   #220 или 328662
welaribo
Я тут живу!
Регистрация: 13.09.2015
Адрес: Минск
Сообщений: 1,213
Репутация: 10
По умолчанию

Цитата:
Сообщение от Урри Посмотреть сообщение
Можно теплоизоляцию делать в том числе пенофолом - накрутить сколько надо и хомутами пластиковыми поверх стянуть. Просто и эффективно.
Почитал про него - да, удобно для утепления круглых труб если делать все с нуля. Его же в земле можно использовать?

Когда надо раскапывать намного легче просто сверху лист утеплителя положить. На фото выше видно что копал возле самых поддонов с кирпичом и вот они начали наклоняться и обрушивать грунт пока я лист подгонял под размеры и проливал/трамбовал. Как только увидел это быстро начал закапывать все обратно 😉. По этой причине не доделал все в других местах, там тоже поддоны близко стоят.
welaribo вне форума Ответить с цитированием
Ответ
Поделись ссылкой на эту тему:


Похожие темы
Тема Автор Раздел Ответов Последнее сообщение
Стройка IT_Prof'ыча IT_Prof Моя стройка! 546 20.07.2021 22:53
Стройка от Икс Икс Моя стройка! 111 19.05.2015 10:02
Стройка Coolnick Coolnick Моя стройка! 82 01.10.2014 15:15
Стройка Тигры Tiger Конкурс "Строительство дома: мечты и реальность!" 3 01.10.2012 10:47

Ваши права в разделе
Вы не можете создавать новые темы
Вы не можете отвечать в темах
Вы не можете прикреплять вложения
Вы не можете редактировать свои сообщения

BB коды Вкл.
Смайлы Вкл.
[IMG] код Вкл.
HTML код Выкл.

Быстрый переход

Стройка welaribo Рейтинг:4.50 из 5 на основе 22 оценок.
Дом СоветовЪ, Беларусь, Минск
Старт:
Старт:
Старт:


Здесь присутствуют: 15 (пользователей: 0 , гостей: 15)
 


Текущее время: 11:53. Часовой пояс GMT +3.


Powered by vBulletin® Version 3.8.8
Copyright ©2000 - 2026, vBulletin Solutions, Inc. Перевод: zCarot
Webmaster: OldEr
Реклама у нас
При публикации материалов с нашего сайта гиперссылка на Дом СоветовЪ обязательна